We use cookies and other technologies for functionality, security, and to provide you with a personalized experience on our online services. By continuing to use our online services, you agree to our Privacy Policy and Terms of Use. For information on how to adjust your privacy settings, visit our Cookie Policy.
Dismiss
Home NS Greater Halifax Halifax County Halifax Middle Sackville
Lot 5018 400 Zaffre Drive
Directions Print
Lot 5018 400 Zaffre Drive $719,900
Next Open House
Dec
20
$719,900
Hide
Favourite

Lot 5018 400 Zaffre Drive
Middle Sackville, Nova Scotia B4E3C3

MLS® Number: 202522682
3 + 1
Bedrooms
3
Bathrooms
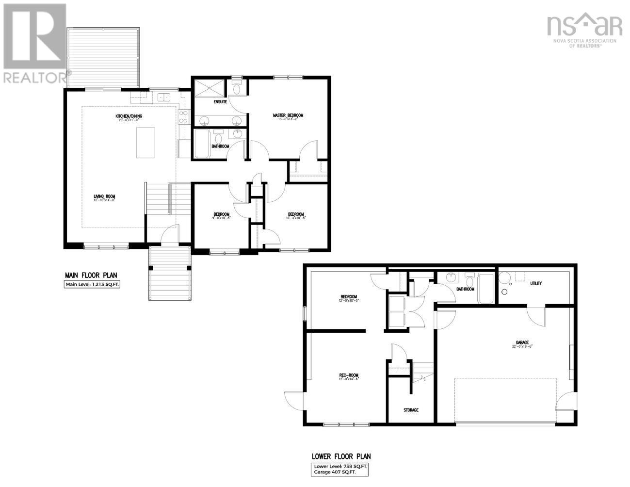
1951
Square Feet

Listing Description

COME AND SEE US AT OUR MODEL HOME AT 242 Zaffre Drive EVERY SATURDAY & SUNDAY FROM 2-4 PM. Amara Developments is thrilled to introduce The Cortina" in the newest phase of Indigo Shores in Middle Sackville, Nova Scotia. Discover "The Cortina" - the epitome of modern living in this stunning newly constructed modern craftsman split-entry home ideally located a short commute from the city yet nestled in a serene country setting, offering 3+1 bedrooms, 3 full baths, and an array of premium features and "zen-factor". This brand-new design is an improvement in size from our popular Aspen plan and features a variety of compelling new qualities. A high-end kitchen awaits with stone counters, full-height cabinets, and soft-close drawers, while the bright living room invites relaxation with wide plank flooring. Luxurious touches abound, including a primary bedroom with a walk-in closet and an ensuite featuring a double floating vanity and custom shower. Contemporary finishes such as custom hardwood stairs, modern lighting, and designer tiles enhance the aesthetic, complemented by an energy-efficient heat pump. Additional highlights include an enhanced kitchen, a double-car garage, and a fourth bedroom in the basement with a full bath. Escape the ordinary and embrace modern comfort in the burbs' discover all the details and features of this stunning home and private oasis. More house plans and lots to come! (231352188)

Location Description

NS-102, take exit 4B, then exit 2A, stay on Margeson Dr, right onto Midnight Run, left on Gaspereau, right onto Bondi Dr, right onto Zaffre Dr

Open Houses

Dec 20
2-4 PM
Dec 21
2-4 PM
Add to Calendar

Property Summary

Property Type
Single Family
Building Type
House
Storeys
1
Square Footage
1951 sqft
Community Name
Middle Sackville
Title
Freehold
Land Size
1.9159 ac
Parking Type
Garage, Attached Garage
Time on REALTOR.ca
98 days

Building

Bedrooms
Above Grade
3
Below Grade
1
Bathrooms
Total
3
Partial
0
Interior Features
Flooring
Ceramic Tile, Laminate
Building Features
Foundation Type
Poured Concrete
Style
Detached
Architecture Style
2 Level
Heating & Cooling
Cooling
Wall unit, Heat Pump
Utilities
Utility Sewer
Septic System
Water
Drilled Well
Exterior Features
Exterior Finish
Vinyl
Parking
Parking Type
Garage, Attached Garage
Accessibility Features
Entry and Access
32in min Entry Doorways
Kitchen and Appliances
5ft min Kitchen Turning Radius
Interior Navigation
32in min Doorways

Measurements

Square Footage
1951 sqft
Source: Other
Total Finished Area
1951 sqft

Rooms

MetricImperial
Main level
Living room
Eat in kitchen
Bath (# pieces 1-6)
Primary Bedroom
Ensuite (# pieces 2-6)
Bedroom
Bedroom
Lower level
Recreational, Games room
Bedroom
Bedroom
Utility room
Other
Bath (# pieces 1-6)
Are you interested in touring this listing?
Request a showing

902-880-4222
902-455-6738

Similar Listings

Scott Moulton