We use cookies and other technologies for functionality, security, and to provide you with a personalized experience on our online services. By continuing to use our online services, you agree to our Privacy Policy and Terms of Use. For information on how to adjust your privacy settings, visit our Cookie Policy.
Dismiss
Home ON Greater Windsor Essex County Windsor South Central
2416 HIGHLAND AVENUE
Directions Print
2416 HIGHLAND AVENUE $799,000
$799,000
Hide
Favourite

2416 HIGHLAND AVENUE
Windsor, Ontario N8X3S7

MLS® Number: 25021140

Listing Description

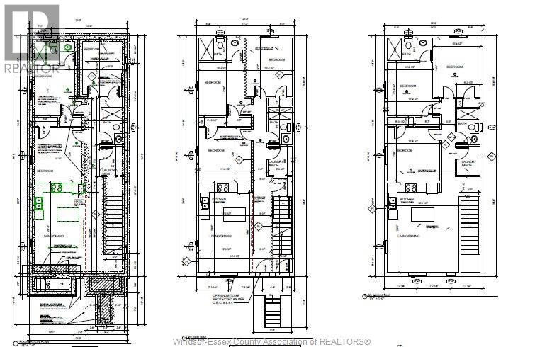
A brand new, purpose-built 3-unit multi-family property on a spacious 3000 sq ft lot in a sought-after East Windsor location. This thoughtfully designed project offers three self-contained units, each with a functional 3-bedroom layout, modern kitchen, open-concept living/dining area, and 3 full bathrooms, all with private entrances for maximum privacy and convenience. Built with today’s lifestyle in mind, the property features energy-efficient construction, central air conditioning, forced-air furnace, and natural gas heating. Interiors are finished with ceramic or porcelain tile, laminate flooring, and a durable exterior blend of aluminum/vinyl, brick, and stucco. Additional highlights include 3 parking spaces with gravel drive, a low-maintenance asphalt roof, and full sanitary/water utility connections. Ideally located just off Foch Ave, this property is close to schools, shopping, public transit, parks, and everyday amenities—making it a smart choice for investors and highly appealing to families seeking modern, convenient living. (53795410)

Property Summary

Property Type
Multi-family
Building Type
Duplex
Storeys
2
Title
Freehold
Land Size
3000 SQ FT
Parking Type
Other (3)
Time on REALTOR.ca
111 days

Building

Interior Features
Flooring
Ceramic/Porcelain, Laminate
Building Features
Foundation Type
Concrete
Building Amenities
Laundry Facility, Shopping Area
Rental Equipment
Water Heater - Gas
Total Units
3
Heating & Cooling
Cooling
Central air conditioning, Fully air conditioned
Heating Type
Forced air, Furnace, (Natural gas)
Exterior Features
Exterior Finish
Aluminum/Vinyl, Brick, Stucco
Parking
Parking Type
Other (3)

Rooms

Main level
3pc Ensuite bath
3pc Bathroom
Primary Bedroom
Bedroom
Bedroom
Laundry room
Kitchen
Eating area
Living room
Second level
3pc Ensuite bath
3pc Bathroom
Laundry room
Primary Bedroom
Bedroom
Bedroom
Kitchen
Eating area
Living room
Basement
Primary Bedroom
Bedroom
Bedroom
Laundry room
Kitchen
Eating area
3pc Ensuite bath
3pc Bathroom
Living room

Land

Other Property Information
Zoning Description
RD1.3
Are you interested in touring this listing?
Request a showing

519-992-7726
519-948-1621

Similar Listings

TOUFIC HASSOUN