We use cookies and other technologies for functionality, security, and to provide you with a personalized experience on our online services. By continuing to use our online services, you agree to our Privacy Policy and Terms of Use. For information on how to adjust your privacy settings, visit our Cookie Policy.
Dismiss
Home NL Greater St. John's Division No. 1 Paradise Karwood Estates
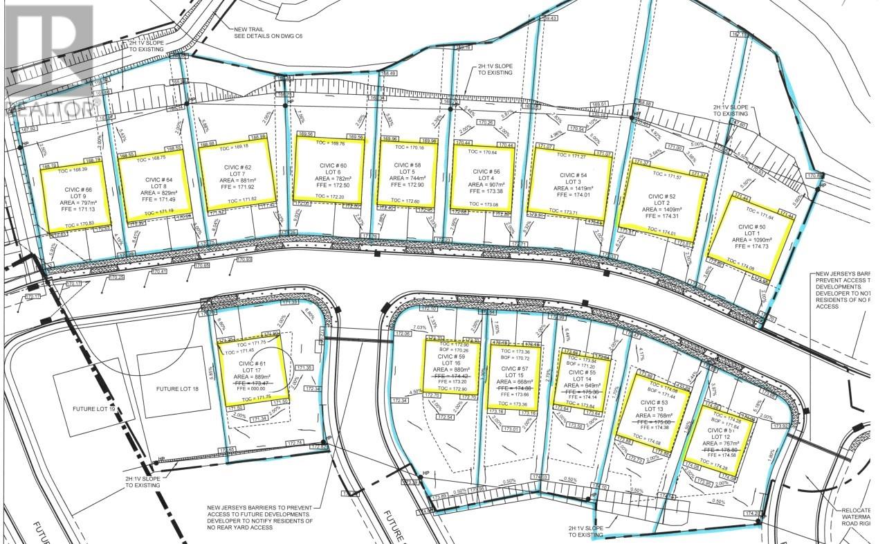
57 Yellow Wood Drive
Directions Print
57 Yellow Wood Drive $150,000
$150,000
Hide
Favourite

57 Yellow Wood Drive
Paradise, Newfoundland & Labrador A1L0X1

MLS® Number: 1285764

Listing Description

Lot for sale at 57 YellowWood drive Paradise and has 52.51feet frontage with a beautiful flat lot, plus rear garden access.Located close to schools,daycare,walking trails,minuets to major shopping centres, hospital and university.plus hst (29685758)

Property Summary

Property Type
Vacant Land
Title
Freehold
Land Size
668 sq meters|under 1/2 acre
Annual Property Taxes
$0
Time on REALTOR.ca
195 days

Building

Utilities
Utility Sewer
Municipal sewage system
Water
Municipal water
Neighbourhood Features
Amenities Nearby
Highway, Recreation, Shopping

Land

Other Property Information
Access
Year-round access
Zoning Description
res
Data provided by: Newfoundland & Labrador Association of REALTORS®
Are you interested in touring this listing?
Request a showing

Similar Listings

FRANCES REARDON