We use cookies and other technologies for functionality, security, and to provide you with a personalized experience on our online services. By continuing to use our online services, you agree to our Privacy Policy and Terms of Use. For information on how to adjust your privacy settings, visit our Cookie Policy.
Dismiss
Home ON Ottawa - Gatineau Ottawa Glebe - Dows Lake
350 FIFTH AVENUE
Directions Print
350 FIFTH AVENUE $1,499,900
$1,499,900
Hide
Favourite

350 FIFTH AVENUE
Ottawa, Ontario K1S2N8

MLS® Number: X12184247
8
Bedrooms
4
Bathrooms
2000 - 2500
Square Feet

Listing Description

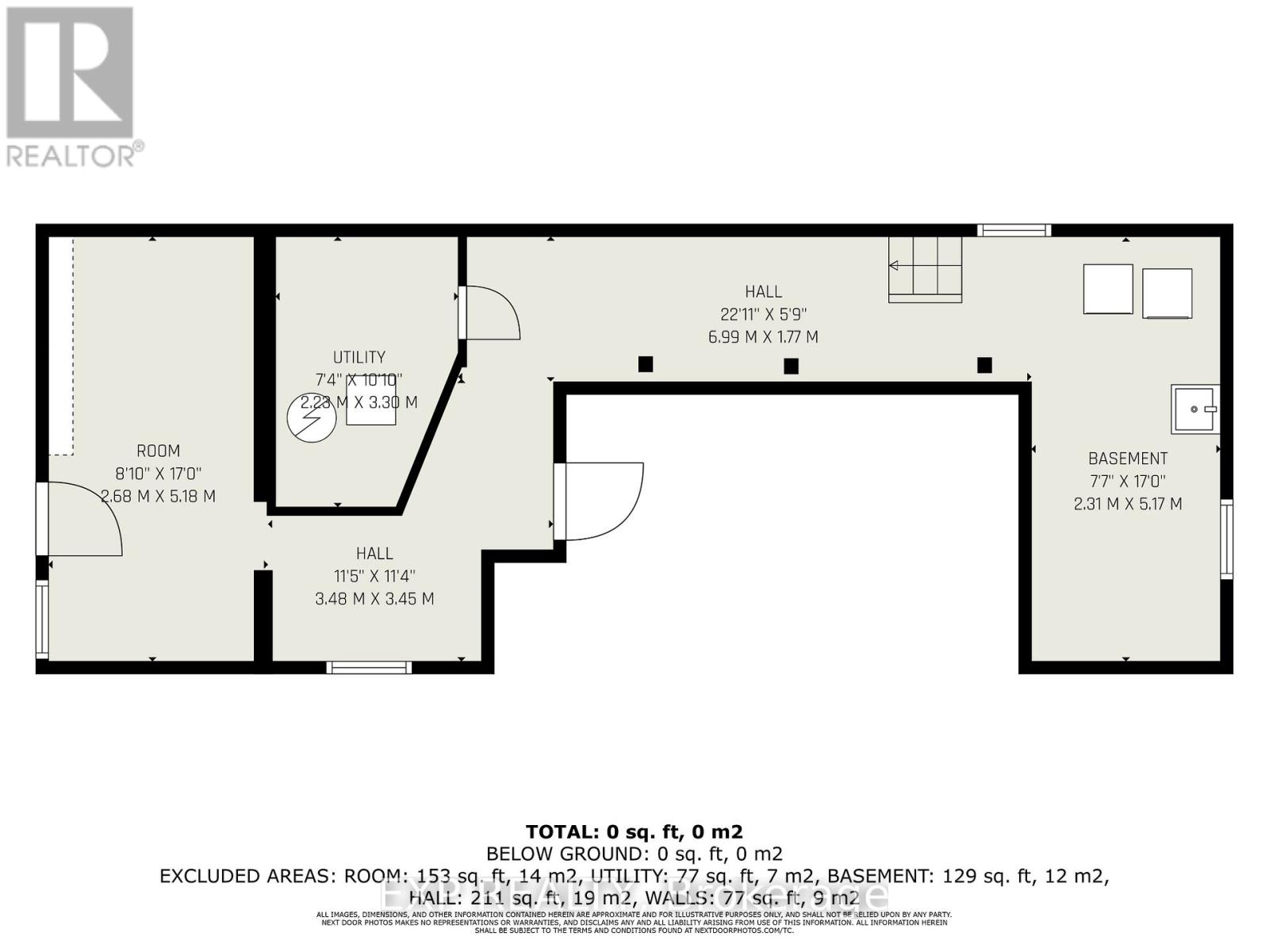
350 Fifth Avenue offers a rare opportunity to own a legal triplex with a bonus bachelor suite in the heart of the Glebe, just steps from Carleton University, Lansdowne Park, and the Rideau Canal. Two units are now leased beginning September 1st (Unit 1 at $2,500/month and Unit 3 at $1,650/month), while the remaining units provide flexibility for new tenancies or owner-occupation.This charming brick property features a versatile mix of units: two spacious 3-bedroom apartments, a 1-bedroom unit, and a self-contained bachelor suite in the basement. The upper units showcase high ceilings, large windows, and timeless architectural details that tenants love, along with private south-facing decks for summer enjoyment. All units have been recently painted, repaired, and refreshed.The property has strong rental potential, with income from coin-operated laundry and parking, and an estimated total of up to $8,000/month when fully leased. Utilities are separated with four hydro meters, while heating and hot water are provided through a newly installed, owned, high-efficiency furnace and on-demand system (2025). An owned coin-operated washer and dryer (2023) add further income. Four on-site parking spaces and a co-owned shared driveway complete the package.An exceptional income property in one of Ottawas most sought-after rental markets. (40574854)

Location Description

Cross Streets: Bronson. ** Directions: Bronson to Fifth Avenue.

Property Summary

Property Type
Multi-family
Building Type
Triplex
Storeys
3
Square Footage
2000 - 2500 sqft
Community Name
4401 - Glebe
Land Size
26 x 120 FT
Annual Property Taxes
$12,052.73
Parking Type
No Garage
Time on REALTOR.ca
204 days

Building

Bedrooms
Above Grade
8
Bathrooms
Total
4
Interior Features
Appliances Included
Water Heater, Water Heater - Tankless
Basement Features
Separate entrance
Basement Type
Partially finished
Building Features
Features
Lane
Foundation Type
Unknown
Building Amenities
Separate Electricity Meters, Separate Heating Controls
Heating & Cooling
Cooling
None
Heating Type
Forced air (Natural gas)
Utilities
Utility Sewer
Sanitary sewer
Water
Municipal water
Exterior Features
Exterior Finish
Brick, Vinyl siding
Parking
Parking Type
No Garage
Total Parking Spaces
4

Measurements

Square Footage
2000 - 2500 sqft

Land

Lot Features
Frontage
26 ft
Land Depth
120 ft
Other Property Information
Zoning Description
R3P[1474]
Data provided by: Ottawa Real Estate Board
Are you interested in touring this listing?
Request a showing

Similar Listings

Edmundo Roa