We use cookies and other technologies for functionality, security, and to provide you with a personalized experience on our online services. By continuing to use our online services, you agree to our Privacy Policy and Terms of Use. For information on how to adjust your privacy settings, visit our Cookie Policy.
Dismiss
Home AB Greater Calgary Division No. 6 Crossfield
1975 McCaskill Drive
Directions Print
1975 McCaskill Drive $498,900
$498,900
Hide
Favourite

1975 McCaskill Drive
Crossfield, Alberta T0M0S0

MLS® Number: A2195071
3
Bedrooms
3
Bathrooms
1443
Square Feet

Listing Description

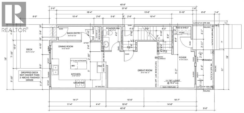
Experience the comfort and style of this custom-built home in the welcoming community of Crossfield. This pre-construction laned home offers 1,443 sq. ft. of smartly designed living space over two stories, with 9-ft ceilings on every level creating a bright, open feel.A charming front porch and a spacious backyard deck set the stage for relaxed summer evenings with family and friends. Inside, the open-concept main floor blends style with function. The kitchen features quartz countertops, a breakfast bar, stainless steel appliances, and textured cabinets. The great room is filled with natural light and highlighted by a sleek electric fireplace. Durable vinyl plank flooring and dual-pane windows add both style and efficiency. A convenient two-piece powder room completes the main floor.Upstairs, the primary suite includes a walk-in closet and a spa-inspired 4-piece ensuite. Two additional bedrooms share another full bathroom, and the laundry room with sink makes everyday living easier.Additional features include a double detached garage, landscaped backyard, and a roughed-in basement with a separate side entrance, giving you options for future development. Buyers also have the opportunity to personalize finishes to match their style.Iron Landing in Crossfield is a family-friendly community with parks, playgrounds, schools, shopping, and dining close by. Crossfield Elementary and W.G. Murdoch School are within walking distance, while Airdrie is less than 10 minutes away and Calgary just 25 minutes. (30520440)

Property Summary

Property Type
Single Family
Building Type
House
Storeys
2
Square Footage
1443 sqft
Title
Freehold
Land Size
3432.52 sqft|0-4,050 sqft
Built in
2025
Annual Property Taxes
$0
Parking Type
Detached Garage (2), Parking Pad
Time on REALTOR.ca
219 days

Building

Bedrooms
Above Grade
3
Bathrooms
Total
3
Partial
1
Interior Features
Appliances Included
Washer, Refrigerator, Range - Gas, Dishwasher, Dryer, Microwave, Hood Fan
Flooring
Carpeted, Concrete, Tile, Vinyl Plank
Basement Features
Separate entrance
Basement Type
Full (Unfinished)
Building Features
Features
Back lane, No Animal Home, No Smoking Home, Gas BBQ Hookup
Foundation Type
Poured Concrete
Style
Detached
Construction Material
Poured concrete, Wood frame
Fire Protection
Smoke Detectors
Structures
Deck
Heating & Cooling
Cooling
None
Fireplace
1
Heating Type
Other, Forced air, (Natural gas)
Exterior Features
Exterior Finish
Concrete, Stone, Vinyl siding
Neighbourhood Features
Amenities Nearby
Park, Playground, Recreation Nearby, Schools, Shopping
Parking
Parking Type
Detached Garage (2), Parking Pad
Total Parking Spaces
2

Measurements

Square Footage
1443 sqft
Total Finished Area
1443 sqft

Rooms

MetricImperial
Main level
2pc Bathroom
Dining room
Other
Kitchen
Great room
Foyer
Second level
Bedroom
Bedroom
4pc Bathroom
Laundry room
4pc Bathroom
Primary Bedroom
Other

Land

Lot Features
Fencing
Partially fenced
Frontage
9.14 m
Landscape Features
Landscaped
Other Property Information
Zoning Description
R-3
Data provided by: Pillar 9™
Are you interested in touring this listing?
Request a showing

Similar Listings

Jay Bhinder