We use cookies and other technologies for functionality, security, and to provide you with a personalized experience on our online services. By continuing to use our online services, you agree to our Privacy Policy and Terms of Use. For information on how to adjust your privacy settings, visit our Cookie Policy.
Dismiss
Home AB Greater Calgary Division No. 6 Crossfield
1981 McCaskill Drive
Directions Print
1981 McCaskill Drive $498,900
$498,900
Hide
Favourite

1981 McCaskill Drive
Crossfield, Alberta T0M0S0

MLS® Number: A2195073
3
Bedrooms
3
Bathrooms
1443
Square Feet

Listing Description

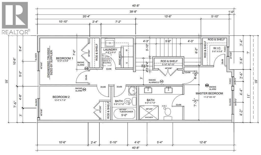
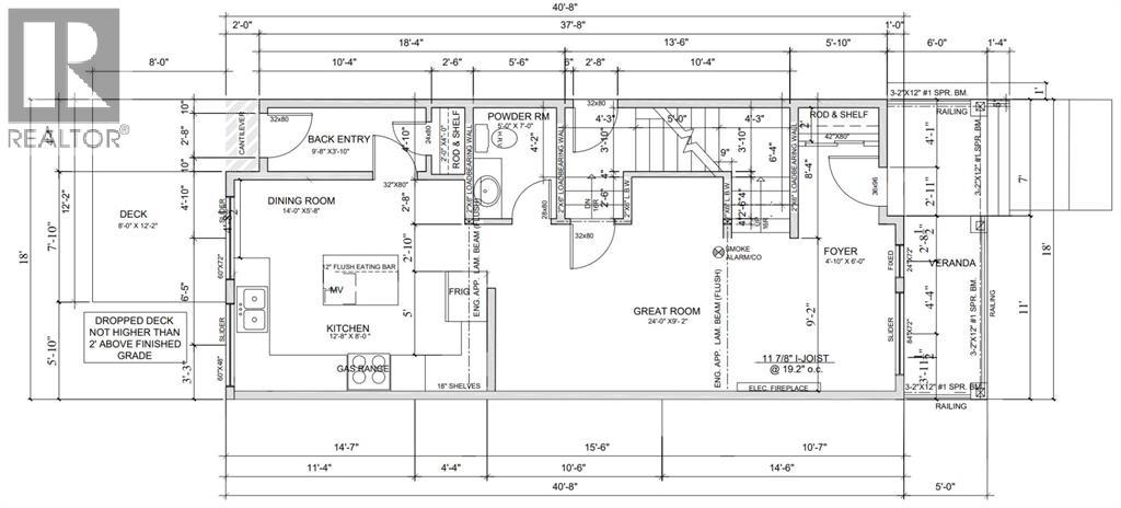
Experience the beauty of this custom-crafted home set in the peaceful surroundings of Crossfield. This pre-construction laned home offers 1,443 square feet of well-designed space across two stories, with 9FT ceilings on every level to enhance the open feel. The home includes a front porch and a backyard deck, ideal for spending time outdoors or hosting family gatherings.Inside, the main floor’s open concept design blends style with functionality. The kitchen features a breakfast bar, quartz countertops, stainless steel appliances, and textured cabinets. Natural light fills the great room, which includes a linear electric fireplace for added comfort. Durable vinyl plank (LVP) flooring, maple accents, and black exterior dual-pane windows provide a modern finish throughout the home. A conveniently located 2-piece powder room completes the main floor.Upstairs, the primary suite includes a 4-piece ensuite and a walk-in closet. Two additional bedrooms provide space for family or guests. A full bathroom and a laundry room with a sink add everyday convenience.Additional features include a double detached garage, fully landscaped backyard, and a roughed-in basement with a separate side entrance, offering potential for future development. Custom finishing options are also available.Located in Crossfield’s Iron Landing community, this home is near parks, playgrounds, shops, dining, and top-rated schools like Crossfield Elementary and W.G. Murdoch School. It’s under 10 minutes to Airdrie, 25 minutes to Calgary, and close to Highway 2 for commuting.Photos are from a previous build; Don’t wait—reach out to make this incredible property yours today! (30520287)

Property Summary

Property Type
Single Family
Building Type
House
Storeys
2
Square Footage
1443 sqft
Title
Freehold
Land Size
3432.52 sqft|0-4,050 sqft
Built in
2025
Annual Property Taxes
$0
Parking Type
Detached Garage (2), Parking Pad
Time on REALTOR.ca
219 days

Building

Bedrooms
Above Grade
3
Bathrooms
Total
3
Partial
1
Interior Features
Appliances Included
Washer, Refrigerator, Range - Gas, Dishwasher, Dryer, Hood Fan
Flooring
Carpeted, Concrete, Tile, Vinyl Plank
Basement Features
Separate entrance
Basement Type
Full (Unfinished)
Building Features
Features
Back lane, No Animal Home, No Smoking Home, Gas BBQ Hookup
Foundation Type
Poured Concrete
Style
Detached
Construction Material
Poured concrete, Wood frame
Fire Protection
Smoke Detectors
Structures
Deck
Heating & Cooling
Cooling
None
Fireplace
1
Heating Type
Other, Forced air, (Natural gas)
Exterior Features
Exterior Finish
Concrete, Stone, Vinyl siding
Neighbourhood Features
Amenities Nearby
Park, Playground, Recreation Nearby, Schools, Shopping
Parking
Parking Type
Detached Garage (2), Parking Pad
Total Parking Spaces
2

Measurements

Square Footage
1443 sqft
Total Finished Area
1443 sqft

Rooms

MetricImperial
Main level
2pc Bathroom
Other
Kitchen
Great room
Foyer
Dining room
Second level
Bedroom
Bedroom
4pc Bathroom
Laundry room
4pc Bathroom
Primary Bedroom
Other

Land

Lot Features
Fencing
Partially fenced
Frontage
7.62 m
Land Depth
35.05 m
Landscape Features
Landscaped
Other Property Information
Zoning Description
R-3
Data provided by: Pillar 9™
Are you interested in touring this listing?
Request a showing

Similar Listings

Jay Bhinder