We use cookies and other technologies for functionality, security, and to provide you with a personalized experience on our online services. By continuing to use our online services, you agree to our Privacy Policy and Terms of Use. For information on how to adjust your privacy settings, visit our Cookie Policy.
Dismiss
Home NL Greater St. John's Division No. 1 Logy Bay-Middle Cove-Outer Cove
54 Middle Ledge Drive
Directions Print
54 Middle Ledge Drive $1,250,000
$1,250,000
Hide
Favourite

54 Middle Ledge Drive
Logy Bay, Newfoundland & Labrador A1K0L5

MLS® Number: 1285060
4
Bedrooms
4
Bathrooms
6200
Square Feet

Listing Description

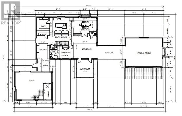
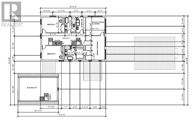
Welcome to 54 (Lot 37) Middle Ledge, a stunning custom home opportunity in the highly sought-after Wexford Estates. This exceptional property offers the perfect blend of privacy, luxury and convenience. Situated on a full-acre lot overlooking a tranquil pond and direct frontage along the esteemed Bally Hally Golf Course, a truly rare setting where natural beauty and elite living converge. Nestled within the scenic community of Logy Bay - Middle Cove - Outer Cove, you’ll enjoy the perfect harmony of urban convenience and the charm of a rural setting with close proximity to St. John’s, Stavanger Drive, Middle Cove Beach and the world-renowned East Coast Trail. Experience unparalleled craftsmanship with Alterra Building Solutions, delivering a seamless build experience. This architecturally designed residence by award winning Peter Blackie, will offer an exceptional level of sophistication with 9-foot ceilings on the main floor to enhance the open-concept layout. Thoughtfully designed with 4 spacious bedrooms and 3.5 bathrooms featuring a sunroom, guest bedroom on the main floor, a large attached garage. Heated main floors, 400 amp panel, multi-zone heating and cooling system, generous allowances and a new year home warranty to name a few key features. The second floor features a luxe primary suite with panoramic views of the golf course, a spa-inspired 5-piece ensuite and walk-in closet. A versatile flex space within the primary suite offers endless possibilities for a private office or a lounge. You’ll also find two additional generously-sized bedrooms and a centrally located laundry room designed for effortless, elevated living. Currently being offered as a pre-sale; however, construction is anticipated to begin in the Spring and ready for occupancy early 2026. The builder is flexible to customizing the plans to meet your needs, ensuring a personalized touch. Don’t miss this opportunity for a quality, thoughtfully designed home in a prime location. (29600369)

Property Summary

Property Type
Single Family
Building Type
House
Storeys
2
Square Footage
6200 sqft
Title
Freehold
Land Size
4,050 Sq M|1 - 3 acres
Built in
2025
Annual Property Taxes
$0
Parking Type
Attached Garage
Time on REALTOR.ca
218 days

Building

Bedrooms
Above Grade
4
Bathrooms
Total
4
Partial
1
Interior Features
Flooring
Mixed Flooring
Building Features
Foundation Type
Concrete Slab
Style
Detached
Architecture Style
2 Level
Structures
Sundeck
Heating & Cooling
Cooling
Air exchanger
Fireplace Type
Woodstove (Wood)
Heating Type
Baseboard heaters, Heat Pump, (Electric), (Wood), Floor heat (Electric)
Utilities
Utility Sewer
Septic tank
Exterior Features
Exterior Finish
Other, Vinyl siding, Wood
Parking
Parking Type
Attached Garage

Measurements

Square Footage
6200 sqft

Rooms

MetricImperial
Main level
Not known
Not known
Dining room
Bedroom
Family room
Kitchen
Second level
Ensuite
Office
Bedroom
Bedroom
Primary Bedroom

Land

Lot Features
Landscape Features
Landscaped
Other Property Information
Zoning Description
RES
Data provided by: Newfoundland & Labrador Association of REALTORS®
Are you interested in touring this listing?
Request a showing

709-699-1929

Similar Listings

Rob Bennett