We use cookies and other technologies for functionality, security, and to provide you with a personalized experience on our online services. By continuing to use our online services, you agree to our Privacy Policy and Terms of Use. For information on how to adjust your privacy settings, visit our Cookie Policy.
Dismiss
Home NS Hants County East Hants
287 9 West Court
Directions Print
287 9 West Court $589,900
Next Open House
Feb
8
$589,900
Hide
Favourite

287 9 West Court
Elmsdale, Nova Scotia B2S1C1

MLS® Number: 202501499
2 + 1
Bedrooms
2
Bathrooms
1863
Square Feet

Listing Description

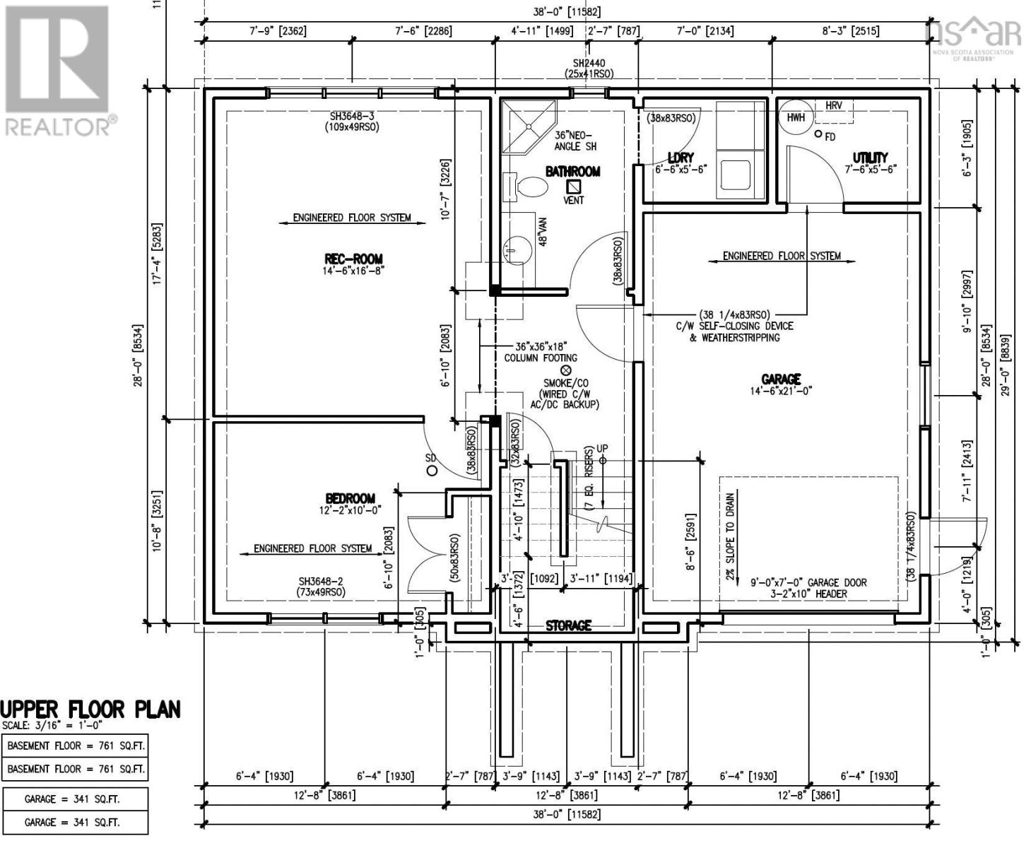
Quick closing available! Another quality-built Gerald Mitchell Home. Welcome to the Holland Split Entry on West Court in Elmsdale. This modern take on the split entry is a product of years of building. The included features have been tried, tested and loved by many, making the Holland Split a combination of function, efficiency, and comfort. The entry way maximizes functionally with its wider than normal design, and 2 closets, one on either wall. Upstairs the open concept design offers a flowing lay out from living room to the country, eat-in kitchen. Vaulted ceiling in this main living area. Kitchen & dining space offer both a lovely island with room for stool seating, and a dining table. The kitchen is a great size & beautifully designed. Patio doors off the dining room lead to the covered back deck for enjoying the treed yard, with a bit of shade for sunny days. Back deck is a generous 12' x 20 feet. Back inside, down the hall leads to a well thought out main bath. This 6-pc bathroom is a special design featuring a custom shower as well as a separate bath, and double sinks, so all family members can have their ideal amenity on the main level. The master bedroom features a large step in closet, and one more good-sized bedroom rounds out the upper floor. Downstairs you'll find the family room, another bathroom, three-piece w shower, the laundry room, and a 3rd bedroom. The attached garage is a welcome bonus for parking, crafting, or storage. West court is a quiet cut-du-sac in a family friendly neighbourhood. Close to all amenities and conveniences. Elmsdale is a growing community with a country living feel and so much to offer. Everything you need from the basics, to thriving local businesses, shops, cafe's, a public library, beautiful recreation centre, sports for the kids, and so much more. Just 30 minutes to Dartmouth. 10 Minutes to the airport. (230337330)

Location Description

From Highway 2 in Elmsdale, to Elmwood Dr, Blakely Dr, to Hemlock Dr, to West Court.

Open Houses

Feb 8
2-4 PM
Add to Calendar

Property Summary

Property Type
Single Family
Building Type
House
Storeys
1
Square Footage
1863 sqft
Community Name
Elmsdale
Title
Freehold
Land Size
0.8812 ac
Parking Type
Garage, Attached Garage, Gravel
Time on REALTOR.ca
376 days

Building

Bedrooms
Above Grade
2
Below Grade
1
Bathrooms
Total
2
Partial
0
Interior Features
Appliances Included
None
Flooring
Laminate, Tile
Basement Type
Full (Finished)
Building Features
Features
Treed
Foundation Type
Poured Concrete
Style
Detached
Heating & Cooling
Cooling
Wall unit, Heat Pump
Utilities
Utility Sewer
Septic System
Water
Municipal water
Exterior Features
Exterior Finish
Vinyl
Neighbourhood Features
Community Features
School Bus
Parking
Parking Type
Garage, Attached Garage, Gravel
Accessibility Features
Entry and Access
32in min Entry Doorways, Entry less than 3 steps
Bathroom Amenities
5ft min Bathroom Turning Radius
Interior Navigation
32in min Doorways

Measurements

Square Footage
1863 sqft
Total Finished Area
1863 sqft

Rooms

MetricImperial
Main level
Foyer
Living room
Eat in kitchen
Bath (# pieces 1-6)
Primary Bedroom
Bedroom
Basement
Recreational, Games room
Bath (# pieces 1-6)
Bedroom
Laundry room
Utility room
Are you interested in touring this listing?
Request a showing

902-497-8464
902-442-0963
REALTOR® Website

Similar Listings

Jerry Mitchell