Nous utilisons des témoins et d’autres technologies pour assurer le fonctionnement et la sécurité de nos services en ligne, et pour vous offrir une expérience personnalisée. En continuant à utiliser nos services en ligne, vous acceptez notre Politique de confidentialité et les conditions d’utilisation. Pour obtenir des informations sur la façon de régler vos paramètres de confidentialité, veuillez consulter notre Politique sur les témoins.
Masquer
Accueil ON Grand Toronto Toronto Vieux Toronto Wellington Place
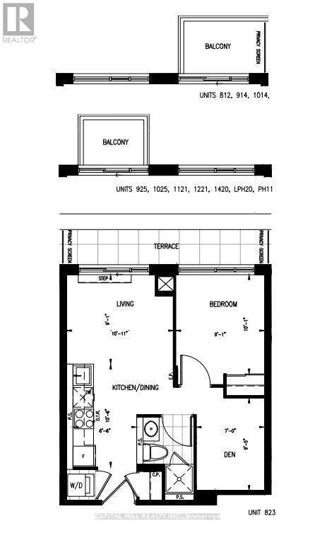
LPH20 - 543 RICHMOND STREET W
Directions Imprimer
LPH20 - 543 RICHMOND STREET W 2 500 $/mois
Depuis 6 heures
2 500 $/mois
Masquer
Favoris

LPH20 - 543 RICHMOND STREET W
Toronto (Waterfront Communities), Ontario M5V0W9

Numéro MLS® : C12756116
1 + 1
Chambres
1
Salles de bain
500 - 599
Pieds carrés

Résumé de la propriété

Type de propriété
Unifamiliale
Type de bâtiment
Appartement
Superficie
500 - 599 pi2
Titre
Copropriété divise
Âge de l'édifice
Bâtiment neuf
Type de stationnement
Stationnement souterrain, Aucun garage
Sur REALTOR.ca depuis
6 heures

Édifice

Chambres
Au-dessus du niveau du sol
1
Au-dessous du niveau du sol
1
Salles de bain
Total
1
Caractéristiques intérieures
Couvre-plancher
plancher en stratifié
Type de sous-sol
Pas de sous-sol
Caractéristiques du bâtiment
Caractéristiques
Balcon
Protection contre les incendies
Agent de sécurité, Détecteurs de fumée, Système d'alarme
Commodités qu'offre le bâtiment
Service de sécurité/conciergerie, Salle d'exercises, Salle de réception
Chauffage et refroidissement
Système de refroidissement
Climatisation centrale
Type de chauffage
Air pulsé (Gaz naturel)
Caractéristiques extérieures
Revêtement extérieur
Brique
Piscine
Piscine extérieure
Caractéristiques du quartier
Caractéristiques de la communauté
Animaux permis avec restrictions
Commodités à proximité
Un hôpital, Parc, Lieu de culte, Transport en commun, Écoles
Infos entretien ou copropriété
Société de gestion de l'entretien
Crossbridge Property Management
Stationnement
Type de stationnement
Stationnement souterrain, Aucun garage
Nombre total d'espaces de stationnement
0

Mesures

Superficie
500 - 599 pi2

Pièces

MétriqueImpérial
Niveau principal
Salon
Salle à manger
Cuisine
Chambre à coucher
Coin repos
Données fournies par : Toronto Regional Real Estate Board
Souhaitez-vous visiter cette propriété?
Demander une visite

Inscriptions semblables

MAZHAR KAIF