Nous utilisons des témoins et d’autres technologies pour assurer le fonctionnement et la sécurité de nos services en ligne, et pour vous offrir une expérience personnalisée. En continuant à utiliser nos services en ligne, vous acceptez notre Politique de confidentialité et les conditions d’utilisation. Pour obtenir des informations sur la façon de régler vos paramètres de confidentialité, veuillez consulter notre Politique sur les témoins.
Masquer
Accueil ON Grand Toronto Newmarket
735 SRIGLEY STREET
Directions Imprimer
735 SRIGLEY STREET 1 050 000 $
Depuis 6 heures
1 050 000 $
Masquer
Favoris

735 SRIGLEY STREET
Newmarket (Gorham-College Manor), Ontario L3Y1X6

Numéro MLS® : N12756068
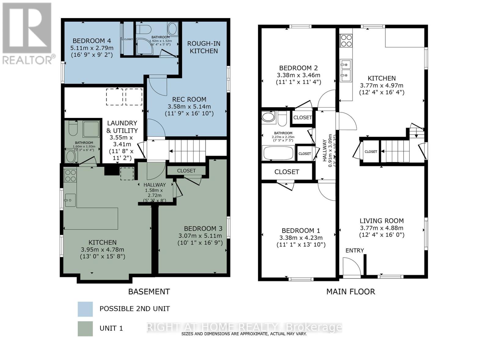
2 + 2
Chambres
3
Salles de bain
700 - 1100
Pieds carrés

Résumé de la propriété

Type de propriété
Unifamiliale
Type de bâtiment
Unifamilial
Superficie
700 - 1100 pi2
Titre
Tenure franche
Superficie du terrain
50 x 188.2 FT
Impôt foncier annuel
5 091 $
Type de stationnement
Garage détaché, Garage
Sur REALTOR.ca depuis
6 heures

Édifice

Chambres
Au-dessus du niveau du sol
2
Au-dessous du niveau du sol
2
Salles de bain
Total
3
Caractéristiques intérieures
Appareils électroménagers inclus
Stores, Lave-vaisselle, Sécheuse, Ouvre-porte de garage, Cuisinière, Machine à laver, Couvre-fenêtre, Réfrigérateur
Caractéristiques du sous-sol
Entrée distincte, Logement au sous-sol
Caractéristiques du bâtiment
Caractéristiques
Pompe de vidange, Appartement accessoire
Type de fondation
Fondation en béton
Style
Isolée
Location de matérial incluse
Chauffe-eau sans réservoir, Chauffe-eau
Chauffage et refroidissement
Système de refroidissement
Climatisation centrale
Type de chauffage
Air pulsé (Gaz naturel)
Services publics
Égouts
Égout sanitaire
Eau
Approvisionnement en eau par la municipalité
Caractéristiques extérieures
Revêtement extérieur
Brique
Stationnement
Type de stationnement
Garage détaché, Garage
Nombre total d'espaces de stationnement
4

Mesures

Superficie
700 - 1100 pi2

Terrain

Caractéristiques du terrain
Façade
50 pi
Superficie du terrain
188 pi 2 po
Données fournies par : Toronto Regional Real Estate Board
Souhaitez-vous visiter cette propriété?
Demander une visite

Inscriptions semblables

QUINTYN MCINNIS