Nous utilisons des témoins et d’autres technologies pour assurer le fonctionnement et la sécurité de nos services en ligne, et pour vous offrir une expérience personnalisée. En continuant à utiliser nos services en ligne, vous acceptez notre Politique de confidentialité et les conditions d’utilisation. Pour obtenir des informations sur la façon de régler vos paramètres de confidentialité, veuillez consulter notre Politique sur les témoins.
Masquer
Accueil AB Grand Calgary Crossfield
1975 McCaskill Drive
Directions Imprimer
1975 McCaskill Drive 499 000 $
Depuis 8 heures
499 000 $
Masquer
Favoris

1975 McCaskill Drive
Crossfield, Alberta T0M0S0

Numéro MLS® : A2279335
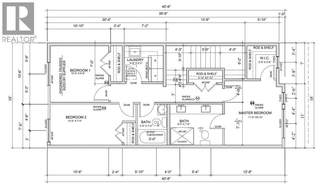
3
Chambres
3
Salles de bain
1443
Pieds carrés

Résumé de la propriété

Type de propriété
Unifamiliale
Type de bâtiment
Unifamilial
Étages
2
Superficie
1443 pi2
Titre
Tenure franche
Superficie du terrain
3432.52 pi2|0-4 050 pi2
Date de construction
2025
Impôt foncier annuel
0 $
Type de stationnement
Garage détaché (2), Aire de stationnement
Sur REALTOR.ca depuis
8 heures

Édifice

Chambres
Au-dessus du niveau du sol
3
Salles de bain
Total
3
Partielle
1
Caractéristiques intérieures
Appareils électroménagers inclus
Machine à laver, Réfrigérateur, Cuisinière à gaz, Lave-vaisselle, Sécheuse, Micro-ondes, Hotte
Couvre-plancher
plancher recouvert de tapis, Béton, Carrelage, Planche vinyle
Caractéristiques du sous-sol
Entrée distincte
Type de sous-sol
Sous-sol complet (Non aménagé)
Caractéristiques du bâtiment
Caractéristiques
Voie d'accès à l'arrière, Maison sans animaux, Maison sans fumeurs, Branchement barbecue à gaz
Type de fondation
Béton coulé
Style
Isolée
Matériau de Construction
Béton coulé, Charpente en bois
Protection contre les incendies
Détecteurs de fumée
Structures
Terrasse
Chauffage et refroidissement
Système de refroidissement
Aucun
Foyer
1
Type de chauffage
Autre, Air pulsé, (Gaz naturel)
Caractéristiques extérieures
Revêtement extérieur
Béton, Pierre, Bardage en vinyle
Caractéristiques du quartier
Commodités à proximité
Parc, Terrain de jeu, Loisirs à proximité, Écoles, Centres commerciaux
Stationnement
Type de stationnement
Garage détaché (2), Aire de stationnement
Nombre total d'espaces de stationnement
2

Mesures

Superficie
1443 pi2
Superficie totale aménagée
1443 pi2

Pièces

MétriqueImpérial
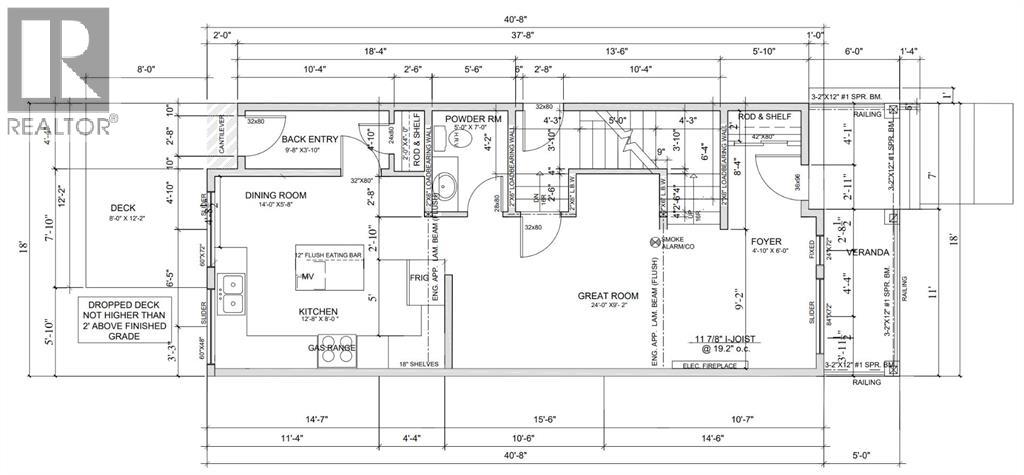
Niveau principal
Salle de bain - 2 éléments
Salle à manger
Autre
Cuisine
Grande salle
Vestibule
Deuxième niveau
Chambre à coucher
Chambre à coucher
Salle de bain - 4 éléments
Buanderie
Salle de bain - 4 éléments
Chambre principale
Autre

Terrain

Caractéristiques du terrain
Clôture
Partiellement clôturé
Façade
9.14 m
Aménagement paysager
Terrain paysager
Données fournies par : Pillar 9™
Souhaitez-vous visiter cette propriété?
Demander une visite

403-821-0520
403-648-2765

Inscriptions semblables

Jay Bhinder