Nous utilisons des témoins et d’autres technologies pour assurer le fonctionnement et la sécurité de nos services en ligne, et pour vous offrir une expérience personnalisée. En continuant à utiliser nos services en ligne, vous acceptez notre Politique de confidentialité et les conditions d’utilisation. Pour obtenir des informations sur la façon de régler vos paramètres de confidentialité, veuillez consulter notre Politique sur les témoins.
Masquer
Accueil ON Grand Toronto Toronto Vieux Toronto St Lawrence-East Bayfront-The Islands St. Lawrence
3206 - 8 THE ESPLANADE
Directions Imprimer
3206 - 8 THE ESPLANADE 648 000 $
Depuis 13 heures
648 000 $
Masquer
Favoris

3206 - 8 THE ESPLANADE
Toronto (Waterfront Communities), Ontario M5E0A6

Numéro MLS® : C12755000
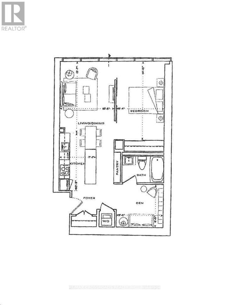
1 + 1
Chambres
1
Salles de bain
700 - 799
Pieds carrés

Résumé de la propriété

Type de propriété
Unifamiliale
Type de bâtiment
Appartement
Superficie
700 - 799 pi2
Titre
Copropriété divise
Âge de l'édifice
0 à 5 ans
Impôt foncier annuel
3 612,08 $
Type de stationnement
Aucun garage
Sur REALTOR.ca depuis
13 heures

Édifice

Chambres
Au-dessus du niveau du sol
1
Au-dessous du niveau du sol
1
Salles de bain
Total
1
Caractéristiques intérieures
Appareils électroménagers inclus
Lave-vaisselle, Sécheuse, Micro-ondes, Four, Hotte, Cuisinière, Machine à laver, Couvre-fenêtre, Réfrigérateur
Couvre-plancher
plancher en stratifié
Type de sous-sol
Pas de sous-sol
Caractéristiques du bâtiment
Caractéristiques
Balcon
Commodités qu'offre le bâtiment
Service de sécurité/conciergerie, Salle d'exercises
Chauffage et refroidissement
Système de refroidissement
Climatisation centrale
Type de chauffage
Air pulsé (Gaz naturel)
Caractéristiques extérieures
Revêtement extérieur
Béton
Piscine
Piscine intérieure
Caractéristiques du quartier
Caractéristiques de la communauté
Animaux permis avec restrictions
Infos entretien ou copropriété
Frais d'entretien
685,22 $ mois
Les frais d'entretien comprennent
Eau, Chauffage, Entretien de la zone commune, Assurance
Société de gestion de l'entretien
Del Property Management
Stationnement
Type de stationnement
Aucun garage
Nombre total d'espaces de stationnement
0

Mesures

Superficie
700 - 799 pi2

Pièces

MétriqueImpérial
Niveau principal
Cuisine
Salon
Salle à manger
Chambre principale
Coin repos
Données fournies par : Toronto Regional Real Estate Board
Souhaitez-vous visiter cette propriété?
Demander une visite

Inscriptions semblables

BETTY LI