Nous utilisons des témoins et d’autres technologies pour assurer le fonctionnement et la sécurité de nos services en ligne, et pour vous offrir une expérience personnalisée. En continuant à utiliser nos services en ligne, vous acceptez notre Politique de confidentialité et les conditions d’utilisation. Pour obtenir des informations sur la façon de régler vos paramètres de confidentialité, veuillez consulter notre Politique sur les témoins.
Masquer
Accueil QC Blue Sea
Ch. du Lac-Castor
Directions Imprimer
Ch. du Lac-Castor 649 900 $ + TPS + TVQ
Depuis 1 journée
649 900 $ + TPS + TVQ
Masquer
Favoris

Ch. du Lac-Castor
Blue Sea, Québec J0X1C0

Numéro MLS® : 19145940
3
Chambres
2
Salles de bain
2080
Pieds carrés

Description de l’inscription

Maison de prestige en bois rond à construire dans le nouveau projet EDJA Signature.Cette maison clé en main est réalisée à partir de billots découpés avec précision en usine, selon un procédé de fabrication supérieur. Contrairement aux maisons en bois rond traditionnelles, chaque billot est taillé au coeur de l'arbre, séché dans un séchoir industriel, puis assemblé une seule fois sur le chantier. Ce procédé assure une stabilité optimale, une durabilité accrue et une qualité nettement supérieure aux constructions scandinaves traditionnelles. Promotion, recevez une thermopompe, un plancher radiant et un plancher de béton polie sans frais. TPS/TVQ doivent être ajoutées au prix demandé (48462733)

Résumé de la propriété

Type de propriété
Unifamiliale
Type de bâtiment
Unifamilial
Étages
2
Superficie
2080 pi2
Superficie du terrain
4077 m2
Âge de l'édifice
Bâtiment neuf
Sur REALTOR.ca depuis
1 journée

Édifice

Salles de bain
Total
2
Partielle
1
Caractéristiques du bâtiment
Type de fondation
Béton coulé
Style
Isolée
Services publics
Égouts
Fosse septique
Eau
Puits

Mesures

Superficie
2080 pi2
Dimension du bâtiment - extérieur
840 pi2

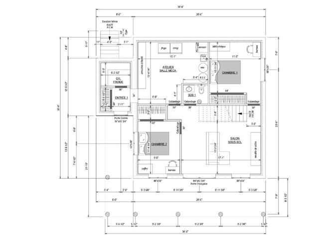
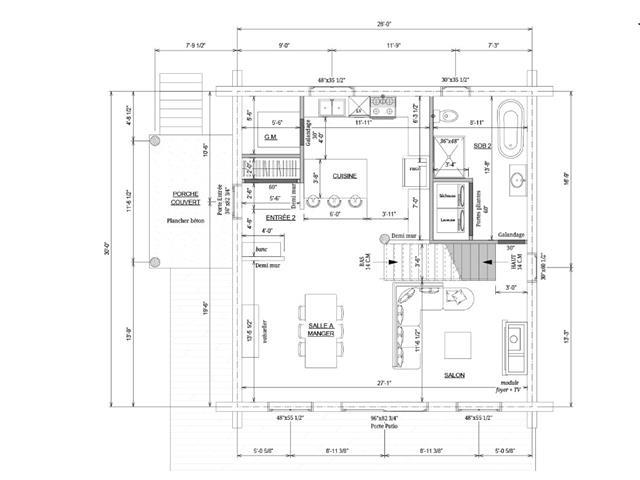
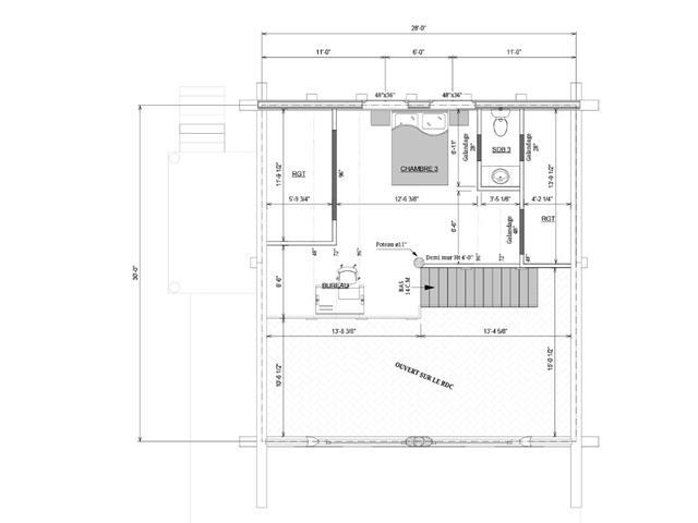
Pièces

MétriqueImpérial
Niveau principal
Salon
Salle à manger
Cuisine
Salle de bain
Deuxième niveau
Chambre à coucher
Bureau
Salle de bains partielle
Autre
Salle familiale
Chambre à coucher
Chambre à coucher
Salle de bain

Terrain

Caractéristiques du terrain
Façade
70 m
Autres informations sur la propriété
Type de Zonage
Mixte
Caractéristiques de la ferme
Type de ferme
Autre
Souhaitez-vous visiter cette propriété?
Demander une visite

Inscriptions semblables

Jonathan Houde