Nous utilisons des témoins et d’autres technologies pour assurer le fonctionnement et la sécurité de nos services en ligne, et pour vous offrir une expérience personnalisée. En continuant à utiliser nos services en ligne, vous acceptez notre Politique de confidentialité et les conditions d’utilisation. Pour obtenir des informations sur la façon de régler vos paramètres de confidentialité, veuillez consulter notre Politique sur les témoins.
Masquer
Accueil ON Kawartha Lakes
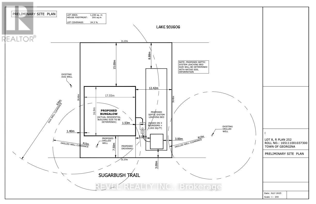
23 SUGARBUSH TRAIL
Directions Imprimer
23 SUGARBUSH TRAIL 399 900 $
Depuis 1 journée
399 900 $
Masquer
Favoris

23 SUGARBUSH TRAIL
Kawartha Lakes (Mariposa), Ontario K0M2C0

Numéro MLS® : X12749964
0
Salles de bain
0 - 699
Pieds carrés

Résumé de la propriété

Type de propriété
Terrain vacant
Superficie
0 - 699 pi2
Superficie du terrain
100 x 129 FT|moins de 1/2 acre
Impôt foncier annuel
1 563 $
Type de stationnement
Aucun garage
Sur REALTOR.ca depuis
1 journée

Édifice

Salles de bain
Total
0
Caractéristiques du bâtiment
Structures
Hangar à bateaux
Services publics
Services publics disponibles
Service du câble (Disponible), Électricité (Disponible)
Stationnement
Type de stationnement
Aucun garage

Mesures

Superficie
0 - 699 pi2

Terrain

Caractéristiques du terrain
Façade
100 pi
Superficie du terrain
129 pi
Vue
Vue sur l'eau, vue directe sur l'eau
Autres informations sur la propriété
Accès
Voie publique, Amarrage privé
Caractéristiques du bord de l'eau
Bord de l'eau
Bord du lac
Accès
Amarrage privé
Structures
Hangar à bateaux
Données fournies par : Central Lakes Association of REALTORS®
Souhaitez-vous visiter cette propriété?
Demander une visite

Inscriptions semblables

TRISH LEIGH TODD