Nous utilisons des témoins et d’autres technologies pour assurer le fonctionnement et la sécurité de nos services en ligne, et pour vous offrir une expérience personnalisée. En continuant à utiliser nos services en ligne, vous acceptez notre Politique de confidentialité et les conditions d’utilisation. Pour obtenir des informations sur la façon de régler vos paramètres de confidentialité, veuillez consulter notre Politique sur les témoins.
Masquer
Accueil ON Centre Wellington
58 AMALIA CRESCENT
Directions Imprimer
58 AMALIA CRESCENT 4 200 000 $
Depuis 2 jours
4 200 000 $
Masquer
Favoris

58 AMALIA CRESCENT
Centre Wellington (Belwood), Ontario N0B1J0

Numéro MLS® : X12747748
3 + 3
Chambres
6
Salles de bain
5000 - 100000
Pieds carrés

Résumé de la propriété

Type de propriété
Unifamiliale
Type de bâtiment
Unifamilial
Étages
1.5
Superficie
5000 - 100000 pi2
Titre
Tenure franche
Superficie du terrain
220.1 x 360.8 FT
Impôt foncier annuel
12 822 $
Type de stationnement
Garage
Sur REALTOR.ca depuis
2 jours

Édifice

Chambres
Au-dessus du niveau du sol
3
Au-dessous du niveau du sol
3
Salles de bain
Total
6
Caractéristiques intérieures
Appareils électroménagers inclus
Télécommande(s) d'ouvre-porte de garage, Aspirateur central, Plaque de cuisson, Chauffe-eau sans réservoir, Surface de cuisson, Lave-vaisselle, Sécheuse, Congélateur, Micro-ondes, Four, Cuisinière, Chauffe-eau, Machine à laver, Adoucisseur d'eau, Frigo à vin, Réfrigérateur
Caractéristiques du sous-sol
Sous-sol à niveau, Entrée distincte
Type de sous-sol
AménagéSous-sol complet
Caractéristiques du bâtiment
Caractéristiques
Appartement accessoire
Type de fondation
Béton coulé
Style
Isolée
Location de matérial incluse
Réservoir de stockage du propane
Structures
Remise
Chauffage et refroidissement
Système de refroidissement
Climatisation centrale, Échangeur d'air
Type de chauffage
Thermopompe (Électrique), Inconnu (Géothermique)
Services publics
Service public - Électricité
Générateur
Égouts
Fosse septique
Caractéristiques extérieures
Revêtement extérieur
Brique
Piscine
Piscine intérieure
Caractéristiques
Piscine d'eau salée
Stationnement
Type de stationnement
Garage
Nombre total d'espaces de stationnement
18

Mesures

Superficie
5000 - 100000 pi2

Pièces

MétriqueImpérial
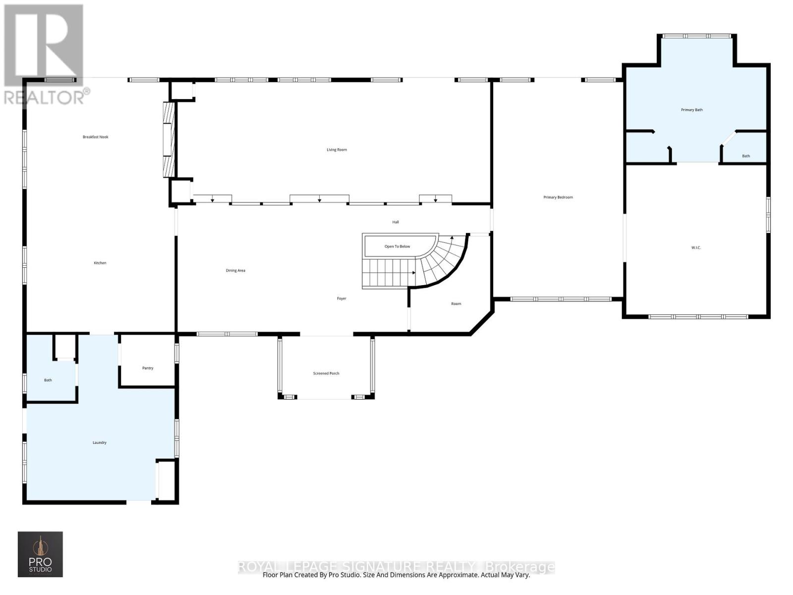
Niveau principal
Cuisine
Autre
Salon
Salle à manger
Salle de repas
Chambre principale
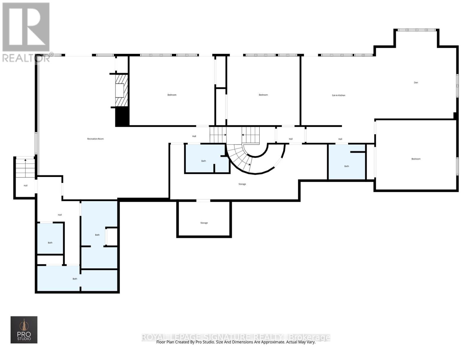
Niveau inférieur
Cuisine
Salle de jeux, récréative
Quatrième chambre
Cinquième chambre
Chambre à coucher
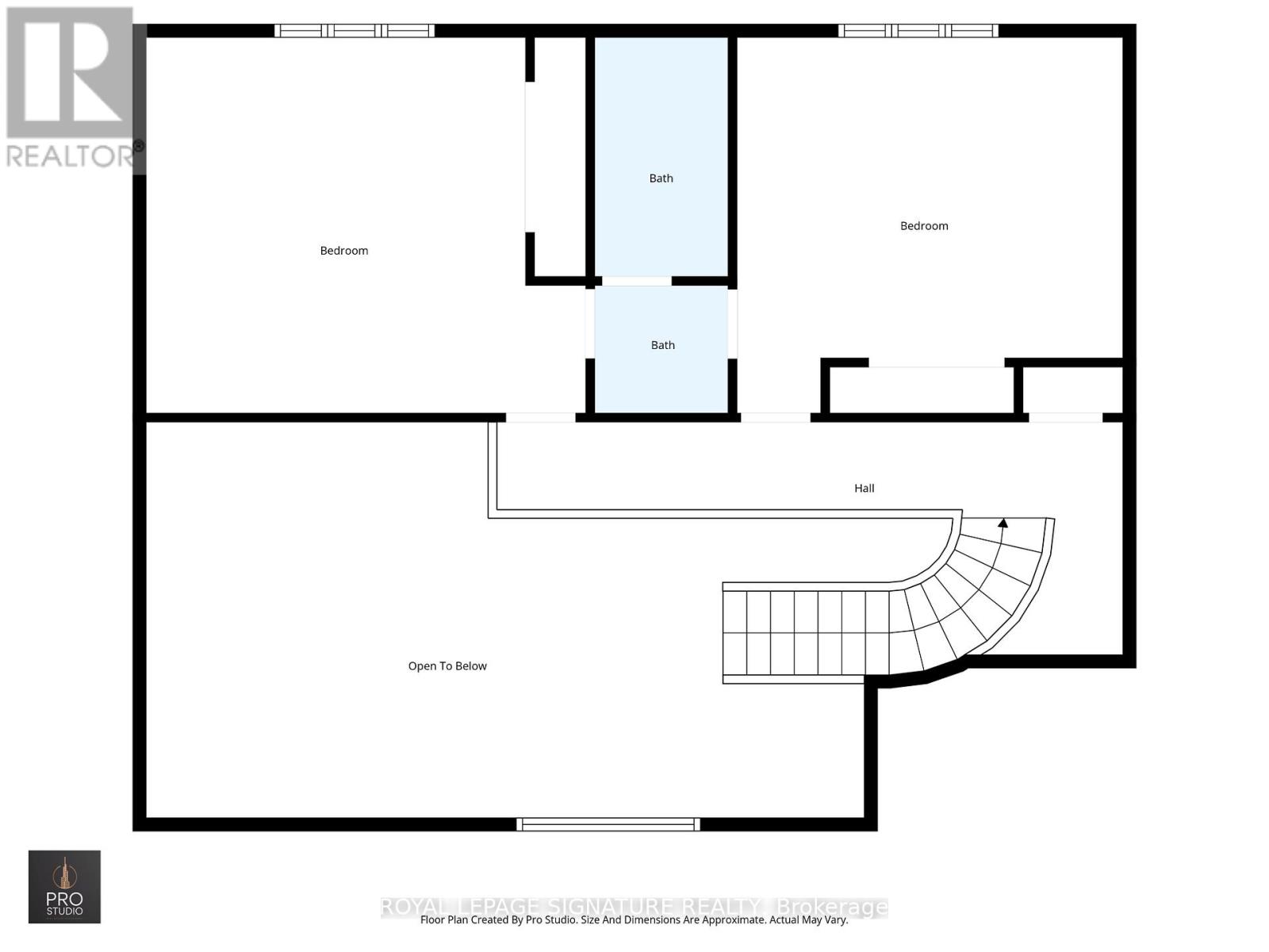
Niveau supérieur
Deuxième chambre
Troisième chambre

Terrain

Caractéristiques du terrain
Façade
220 pi 1 po
Superficie du terrain
360 pi 9 po
Données fournies par : Toronto Regional Real Estate Board
Souhaitez-vous visiter cette propriété?
Demander une visite

Inscriptions semblables

JASON PACHECO