Nous utilisons des témoins et d’autres technologies pour assurer le fonctionnement et la sécurité de nos services en ligne, et pour vous offrir une expérience personnalisée. En continuant à utiliser nos services en ligne, vous acceptez notre Politique de confidentialité et les conditions d’utilisation. Pour obtenir des informations sur la façon de régler vos paramètres de confidentialité, veuillez consulter notre Politique sur les témoins.
Masquer
Accueil ON Grand Toronto Toronto Vieux Toronto Yorkville
3410 - 1 YORKVILLE AVENUE
Directions Imprimer
3410 - 1 YORKVILLE AVENUE 2 350 $/mois
Depuis 2 jours
2 350 $/mois
Masquer
Favoris

3410 - 1 YORKVILLE AVENUE
Toronto (Annex), Ontario M4W0B1

Numéro MLS® : C12747294
1
Chambres
1
Salles de bain
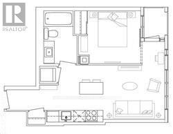
0 - 499
Pieds carrés

Résumé de la propriété

Type de propriété
Unifamiliale
Type de bâtiment
Appartement
Superficie
0 - 499 pi2
Titre
Copropriété divise
Âge de l'édifice
0 à 5 ans
Type de stationnement
Aucun garage
Sur REALTOR.ca depuis
2 jours

Édifice

Chambres
Au-dessus du niveau du sol
1
Salles de bain
Total
1
Caractéristiques intérieures
Couvre-plancher
plancher en stratifié
Type de sous-sol
Pas de sous-sol
Caractéristiques du bâtiment
Caractéristiques
Balcon, Sans tapis
Protection contre les incendies
Système d'alarme, Détecteurs de fumée
Commodités qu'offre le bâtiment
Service de sécurité/conciergerie, Salle d'exercises, Salle de réception, Sauna, Dispositifs distincts de régulation du système de chauffage, Compteurs d'électricité distincts
Chauffage et refroidissement
Système de refroidissement
Climatisation centrale
Type de chauffage
Air pulsé (Gaz naturel)
Caractéristiques extérieures
Revêtement extérieur
Béton
Piscine
Piscine extérieure
Caractéristiques du quartier
Caractéristiques de la communauté
Animaux permis avec restrictions
Commodités à proximité
Un hôpital, Parc
Infos entretien ou copropriété
Société de gestion de l'entretien
First Service Residential
Stationnement
Type de stationnement
Aucun garage
Nombre total d'espaces de stationnement
0

Mesures

Superficie
0 - 499 pi2

Pièces

MétriqueImpérial
Plat
Salon
Salle à manger
Cuisine
Chambre principale

Terrain

Caractéristiques du terrain
Vue
Vue
Données fournies par : Toronto Regional Real Estate Board
Souhaitez-vous visiter cette propriété?
Demander une visite

Inscriptions semblables

ANDREW PIETRZAK