Nous utilisons des témoins et d’autres technologies pour assurer le fonctionnement et la sécurité de nos services en ligne, et pour vous offrir une expérience personnalisée. En continuant à utiliser nos services en ligne, vous acceptez notre Politique de confidentialité et les conditions d’utilisation. Pour obtenir des informations sur la façon de régler vos paramètres de confidentialité, veuillez consulter notre Politique sur les témoins.
Masquer
Accueil ON Dufferin Shelburne
125 JAMES STREET S
Directions Imprimer
125 JAMES STREET S 599 000 $
Depuis 3 jours
599 000 $
Masquer
Favoris

125 JAMES STREET S
Shelburne, Ontario L9V2Y7

Numéro MLS® : X12745178
2
Chambres
2
Salles de bain
1100 - 1500
Pieds carrés

Résumé de la propriété

Type de propriété
Unifamiliale
Type de bâtiment
Unifamilial
Étages
1.5
Superficie
1100 - 1500 pi2
Titre
Tenure franche
Superficie du terrain
48.5 x 49.5 FT ; irregular shape|moins de 1/2 acre
Âge de l'édifice
100+ ans
Impôt foncier annuel
3 338 $
Type de stationnement
Aucun garage
Sur REALTOR.ca depuis
3 jours

Édifice

Chambres
Au-dessus du niveau du sol
2
Salles de bain
Total
2
Partielle
1
Caractéristiques intérieures
Appareils électroménagers inclus
Chauffe-eau, Adoucisseur d'eau, Compteur d'eau, Stores, Couvre-fenêtre
Type de sous-sol
Sous-sol complet (Non aménagé)
Caractéristiques du bâtiment
Caractéristiques
Terrain irrégulier, Sans tapis
Style
Isolée
Statut de construction
Isolant amélioré
Chauffage et refroidissement
Système de refroidissement
Climatisation centrale
Type de chauffage
Air pulsé (Gaz naturel)
Services publics
Services publics disponibles
Service du câble (Disponible), Électricité (Installé), Service d'égout (Installé)
Égouts
Égout sanitaire
Eau
Approvisionnement en eau par la municipalité
Caractéristiques extérieures
Revêtement extérieur
Bardage en vinyle
Caractéristiques du quartier
Caractéristiques de la communauté
Centre communautaire
Commodités à proximité
Écoles
Stationnement
Type de stationnement
Aucun garage
Nombre total d'espaces de stationnement
2

Mesures

Superficie
1100 - 1500 pi2

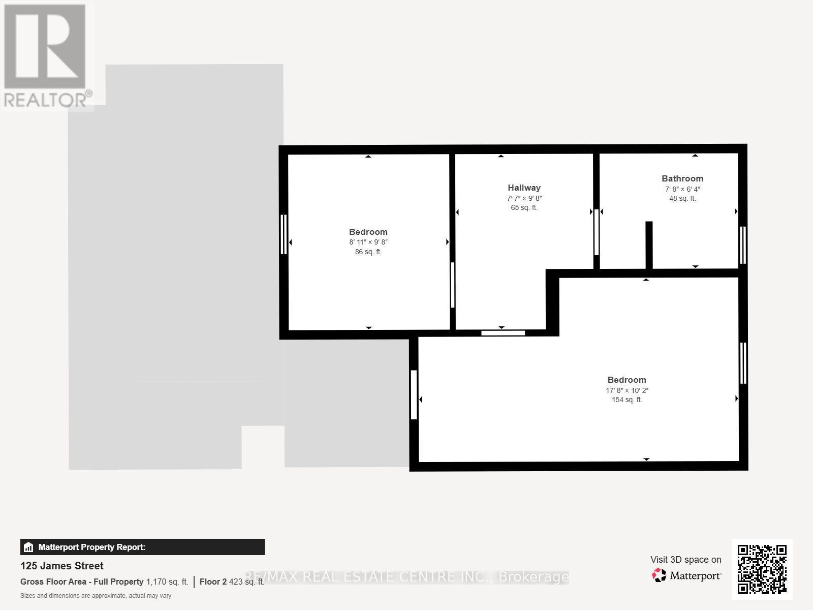
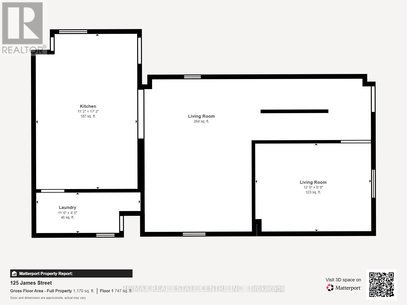
Pièces

MétriqueImpérial
Niveau principal
Cuisine
Salon
Coin repos
Salle de bain
Deuxième niveau
Chambre à coucher
Deuxième chambre
Salle de bain

Terrain

Caractéristiques du terrain
Clôture
Cour clôturée
Façade
48 pi 6 po
Superficie du terrain
49 pi 6 po
Données fournies par : Toronto Regional Real Estate Board
Souhaitez-vous visiter cette propriété?
Demander une visite

Inscriptions semblables

KEN BENNINGTON