Nous utilisons des témoins et d’autres technologies pour assurer le fonctionnement et la sécurité de nos services en ligne, et pour vous offrir une expérience personnalisée. En continuant à utiliser nos services en ligne, vous acceptez notre Politique de confidentialité et les conditions d’utilisation. Pour obtenir des informations sur la façon de régler vos paramètres de confidentialité, veuillez consulter notre Politique sur les témoins.
Masquer
Accueil ON Grand Toronto Whitchurch-Stouffville
106 A - 11782 NINTH LINE
Directions Imprimer
106 A - 11782 NINTH LINE 860 000 $
Depuis 6 jours
860 000 $
Masquer
Favoris

106 A - 11782 NINTH LINE
Whitchurch-Stouffville (Stouffville), Ontario L4A5E9

Numéro MLS® : N12736708
2 + 1
Chambres
3
Salles de bain
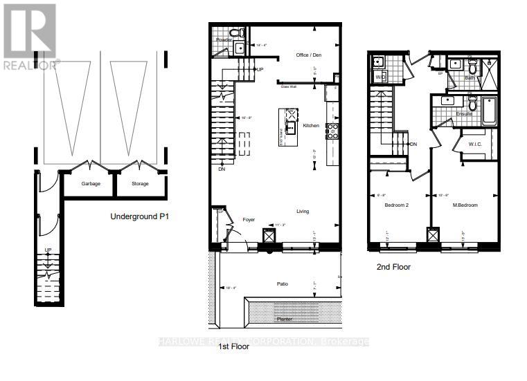
1600 - 1799
Pieds carrés

Résumé de la propriété

Type de propriété
Unifamiliale
Type de bâtiment
Maison en rangée
Étages
2
Superficie
1600 - 1799 pi2
Titre
Copropriété divise
Âge de l'édifice
Bâtiment neuf
Impôt foncier annuel
4 562,75 $
Type de stationnement
Stationnement souterrain, Garage
Sur REALTOR.ca depuis
6 jours

Édifice

Chambres
Au-dessus du niveau du sol
2
Au-dessous du niveau du sol
1
Salles de bain
Total
3
Partielle
1
Caractéristiques intérieures
Appareils électroménagers inclus
Sécheuse, Machine à laver
Couvre-plancher
plancher de bois franc
Type de sous-sol
Pas de sous-sol
Caractéristiques du bâtiment
Caractéristiques
Conservation/ceinture verte
Commodités qu'offre le bâtiment
Service de sécurité/conciergerie, Salle d'exercises, Stationnement pour les visiteurs, Armoire vestiaire
Chauffage et refroidissement
Système de refroidissement
Climatisation centrale
Type de chauffage
Air pulsé (Gaz naturel)
Caractéristiques extérieures
Revêtement extérieur
Brique, Béton
Caractéristiques du quartier
Caractéristiques de la communauté
Animaux permis avec restrictions
Commodités à proximité
Terrain de golf à proximité, Un hôpital, Transport en commun
Infos entretien ou copropriété
Frais d'entretien
1 142,28 $ mois
Les frais d'entretien comprennent
Chauffage, Eau, Entretien de la zone commune, Assurance, Parking
Société de gestion de l'entretien
TBD
Stationnement
Type de stationnement
Stationnement souterrain, Garage
Nombre total d'espaces de stationnement
2

Mesures

Superficie
1600 - 1799 pi2

Pièces

MétriqueImpérial
Niveau principal
Salon
Salle à manger
Cuisine
Coin repos
Niveau supérieur
Chambre principale
Deuxième chambre
Données fournies par : Toronto Regional Real Estate Board
Souhaitez-vous visiter cette propriété?
Demander une visite

Inscriptions semblables

TAWNYA DEL BEN FLETCHER