Nous utilisons des témoins et d’autres technologies pour assurer le fonctionnement et la sécurité de nos services en ligne, et pour vous offrir une expérience personnalisée. En continuant à utiliser nos services en ligne, vous acceptez notre Politique de confidentialité et les conditions d’utilisation. Pour obtenir des informations sur la façon de régler vos paramètres de confidentialité, veuillez consulter notre Politique sur les témoins.
Masquer
Accueil ON Norfolk Norfolk County Port Dover
5 NEWPORT LANE
Directions Imprimer
5 NEWPORT LANE 1 190 000 $
Depuis 6 jours
1 190 000 $
Masquer
Favoris

5 NEWPORT LANE
Norfolk (Port Dover), Ontario N0A1N7

Numéro MLS® : X12735458
5
Chambres
3
Salles de bain
1500 - 2000
Pieds carrés

Résumé de la propriété

Type de propriété
Unifamiliale
Type de bâtiment
Unifamilial
Étages
1
Superficie
1500 - 2000 pi2
Titre
Tenure franche
Superficie du terrain
59.2 x 193.1 FT
Impôt foncier annuel
5 571,16 $
Type de stationnement
Garage attenant, Garage
Sur REALTOR.ca depuis
6 jours

Édifice

Chambres
Au-dessus du niveau du sol
5
Salles de bain
Total
3
Partielle
1
Caractéristiques intérieures
Appareils électroménagers inclus
Lave-vaisselle, Sécheuse, Cuisinière, Machine à laver, Réfrigérateur
Type de sous-sol
Aménagé
Caractéristiques du bâtiment
Type de fondation
Béton coulé
Style
Isolée
Style d'architecture
Bungalow
Chauffage et refroidissement
Système de refroidissement
Climatisation centrale
Type de chauffage
Air pulsé (Gaz naturel)
Services publics
Égouts
Égout sanitaire
Eau
Approvisionnement en eau par la municipalité
Caractéristiques extérieures
Revêtement extérieur
Brique
Stationnement
Type de stationnement
Garage attenant, Garage
Nombre total d'espaces de stationnement
6

Mesures

Superficie
1500 - 2000 pi2

Pièces

MétriqueImpérial
Niveau principal
Solarium
Salle à manger
Salon
Cuisine
Buanderie
Chambre principale
Salle de bain
Salle de bain
Chambre à coucher
Chambre à coucher
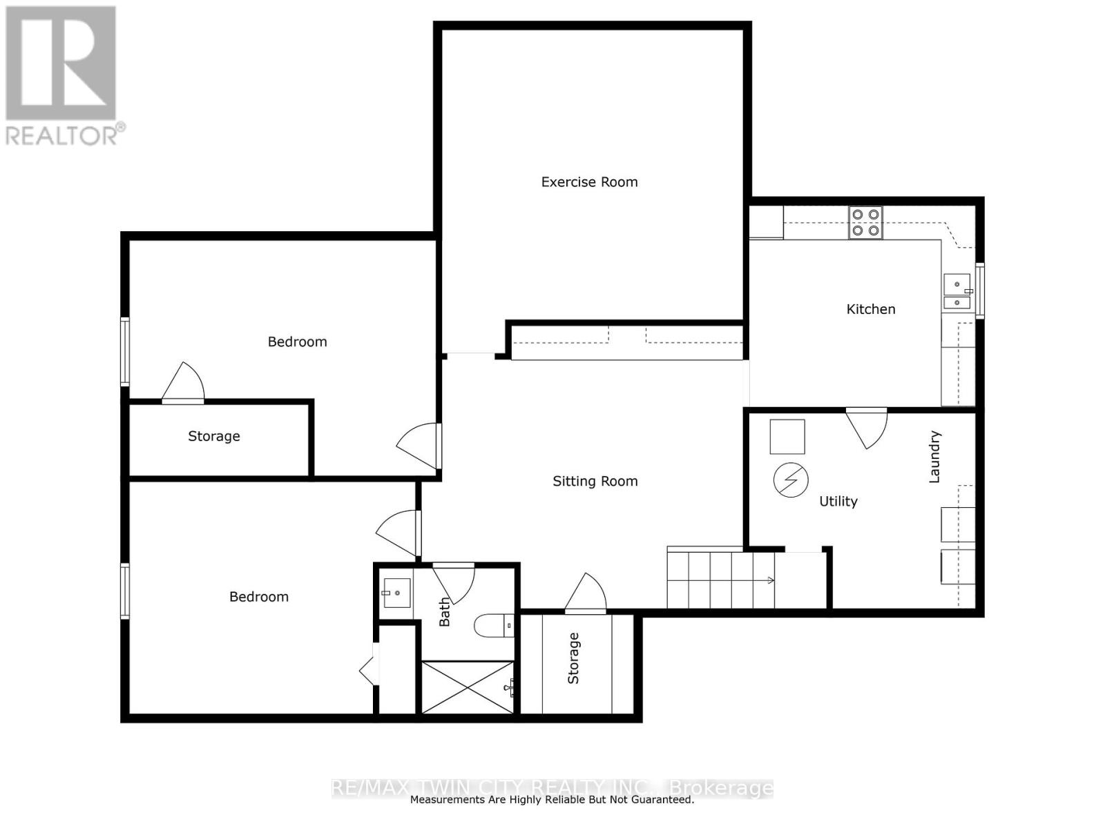
Sous-sol
Salle de culture physique
Cuisine
Local de services
Salon
Chambre à coucher
Chambre à coucher
Salle de bain

Terrain

Caractéristiques du terrain
Façade
59 pi 2 po
Superficie du terrain
193 pi 1 po
Données fournies par : Toronto Regional Real Estate Board
Souhaitez-vous visiter cette propriété?
Demander une visite

Inscriptions semblables

RYAND CAMPBELL