Nous utilisons des témoins et d’autres technologies pour assurer le fonctionnement et la sécurité de nos services en ligne, et pour vous offrir une expérience personnalisée. En continuant à utiliser nos services en ligne, vous acceptez notre Politique de confidentialité et les conditions d’utilisation. Pour obtenir des informations sur la façon de régler vos paramètres de confidentialité, veuillez consulter notre Politique sur les témoins.
Masquer
Accueil ON Grand Toronto Toronto Etobicoke Chestnut Hills
4662 DUNDAS STREET W
Directions Imprimer
4662 DUNDAS STREET W 2 499 900 $
Depuis 7 jours
2 499 900 $
Masquer
Favoris

4662 DUNDAS STREET W
Toronto (Edenbridge-Humber Valley), Ontario M9A1A6

Numéro MLS® : W12733620
4 + 2
Chambres
5
Salles de bain
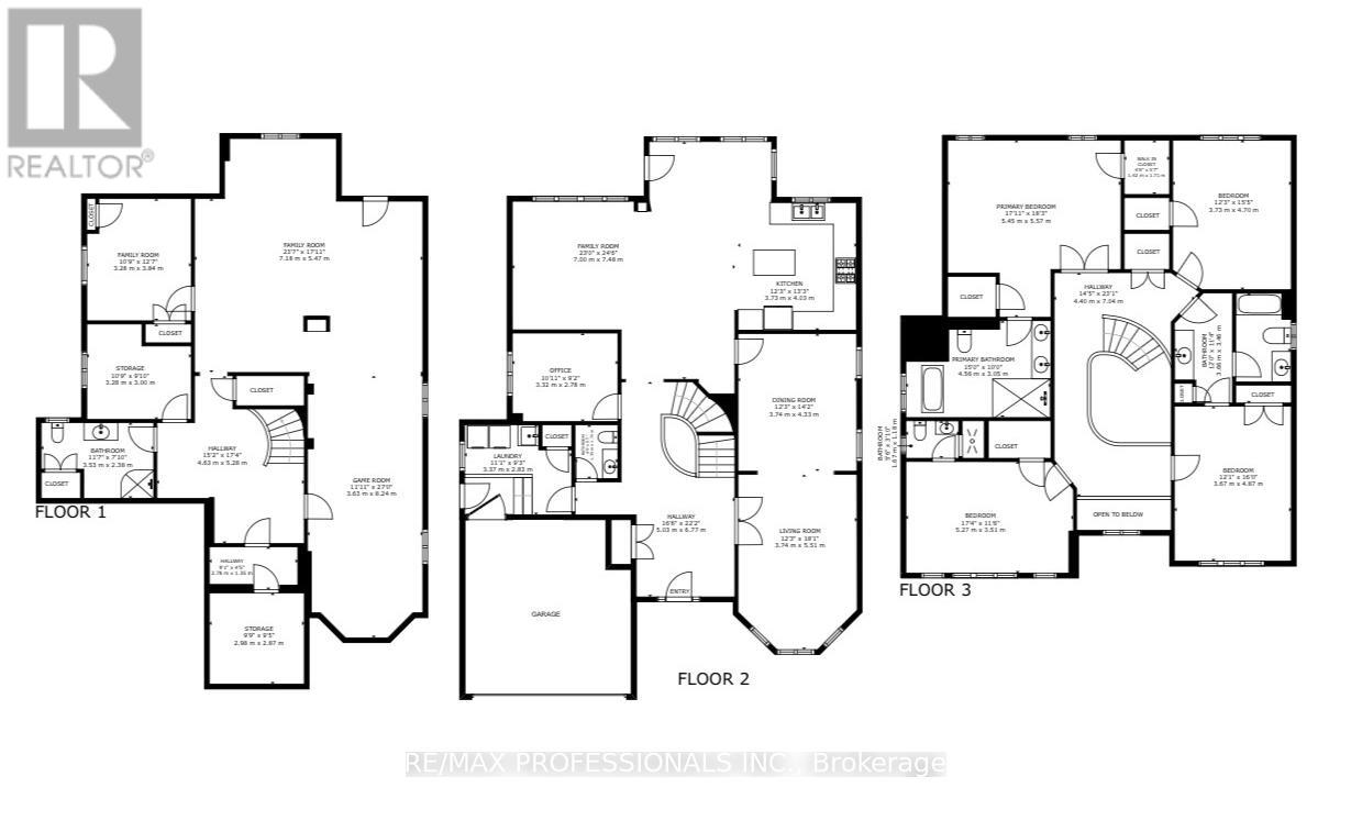
3000 - 3500
Pieds carrés

Résumé de la propriété

Type de propriété
Unifamiliale
Type de bâtiment
Unifamilial
Étages
2
Superficie
3000 - 3500 pi2
Titre
Tenure franche
Superficie du terrain
50 x 150 FT
Impôt foncier annuel
12 163 $
Type de stationnement
Garage attenant, Garage
Sur REALTOR.ca depuis
7 jours

Édifice

Chambres
Au-dessus du niveau du sol
4
Au-dessous du niveau du sol
2
Salles de bain
Total
5
Partielle
1
Caractéristiques intérieures
Appareils électroménagers inclus
Télécommande(s) d'ouvre-porte de garage, Aspirateur central, Chauffe-eau, Lave-vaisselle, Sécheuse, Meubles, Hotte, Cuisinière, Machine à laver, Couvre-fenêtre, Réfrigérateur
Couvre-plancher
plancher de bois franc, plancher en stratifié, Céramique
Caractéristiques du sous-sol
Sous-sol à niveau
Type de sous-sol
Aménagé
Caractéristiques du bâtiment
Caractéristiques
Sans tapis, Pompe de vidange
Type de fondation
Blocs de béton, Fondation en béton
Style
Isolée
Chauffage et refroidissement
Système de refroidissement
Climatisation centrale
Type de chauffage
Thermopompe (Électrique), Air pulsé (Gaz naturel)
Services publics
Égouts
Égout sanitaire
Eau
Approvisionnement en eau par la municipalité
Caractéristiques extérieures
Revêtement extérieur
Brique
Stationnement
Type de stationnement
Garage attenant, Garage
Nombre total d'espaces de stationnement
10

Mesures

Superficie
3000 - 3500 pi2

Pièces

MétriqueImpérial
Niveau principal
Salon
Salle à manger
Cuisine
Salle familiale
Bureau
Buanderie
Niveau inférieur
Salle de jeux, récréative
Salle de jeux
Cinquième chambre
Niveau supérieur
Chambre principale
Deuxième chambre
Troisième chambre
Quatrième chambre

Terrain

Caractéristiques du terrain
Façade
50 pi
Superficie du terrain
150 pi
Données fournies par : Toronto Regional Real Estate Board
Souhaitez-vous visiter cette propriété?
Demander une visite

Inscriptions semblables

DAN SARACINO