Nous utilisons des témoins et d’autres technologies pour assurer le fonctionnement et la sécurité de nos services en ligne, et pour vous offrir une expérience personnalisée. En continuant à utiliser nos services en ligne, vous acceptez notre Politique de confidentialité et les conditions d’utilisation. Pour obtenir des informations sur la façon de régler vos paramètres de confidentialité, veuillez consulter notre Politique sur les témoins.
Masquer
Accueil PE Grand Charlottetown Charlottetown Winsloe
32 Aidan Street
Directions Imprimer
32 Aidan Street 409 900 $
Depuis 7 jours
409 900 $
Masquer
Favoris

32 Aidan Street
West Royalty, Île-du-Prince-Édouard C1A3J4

Numéro MLS® : 202601570
3
Chambres
2
Salles de bain

Résumé de la propriété

Type de propriété
Unifamiliale
Type de bâtiment
Unifamilial
Titre
Tenure franche
Superficie du terrain
0.125 a|moins de 1/2 acre
Type de stationnement
Garage attenant
Sur REALTOR.ca depuis
7 jours

Édifice

Chambres
Au-dessus du niveau du sol
3
Salles de bain
Total
2
Partielle
0
Caractéristiques intérieures
Appareils électroménagers inclus
Cuisinière, Lave-vaisselle, Four à micro-ondes avec hotte intégrée, Réfrigérateur
Couvre-plancher
Vinyle
Type de sous-sol
Pas de sous-sol
Caractéristiques du bâtiment
Caractéristiques
Voie d'accès pavée
Type de fondation
Dalle en béton
Style
Jumelée
Chauffage et refroidissement
Système de refroidissement
Échangeur d'air
Type de chauffage
Thermopompe murale, Chauffage par rayonnement, (Électrique)
Services publics
Égouts
Égout municipal
Eau
Approvisionnement en eau par la municipalité
Caractéristiques extérieures
Revêtement extérieur
Vinyle, Bois
Caractéristiques du quartier
Caractéristiques de la communauté
Installations récréatives, Autobus scolaire
Commodités à proximité
Parc, Terrain de jeu, Transport en commun, Centres commerciaux
Stationnement
Type de stationnement
Garage attenant

Mesures

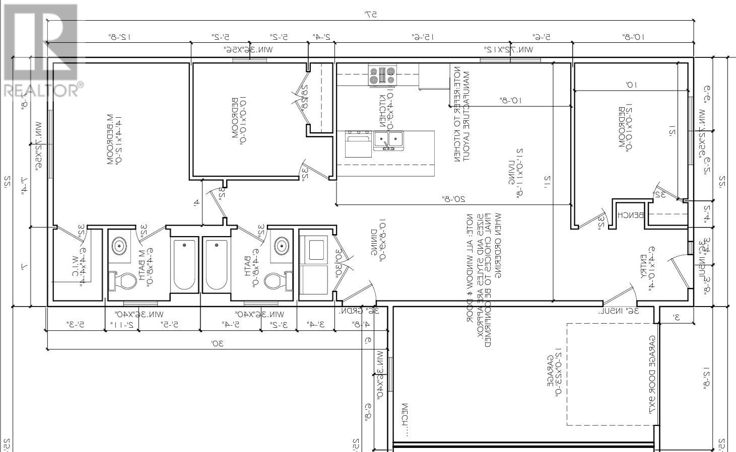
Superficie totale aménagée
1254 pi2

Pièces

MétriqueImpérial
Niveau principal
Cuisine
Salon
Vestibule
Chambre principale
Ensuite (nbre de pièces 2-6)
Chambre à coucher
Chambre à coucher
Bain (nbre de pièces 1-6)

Terrain

Caractéristiques du terrain
Aménagement paysager
Terrain paysager
Souhaitez-vous visiter cette propriété?
Demander une visite

Inscriptions semblables

Nick McGregor