Nous utilisons des témoins et d’autres technologies pour assurer le fonctionnement et la sécurité de nos services en ligne, et pour vous offrir une expérience personnalisée. En continuant à utiliser nos services en ligne, vous acceptez notre Politique de confidentialité et les conditions d’utilisation. Pour obtenir des informations sur la façon de régler vos paramètres de confidentialité, veuillez consulter notre Politique sur les témoins.
Masquer
Accueil BC Grand Vancouver Greater Vancouver Burnaby Parkcrest-Aubrey
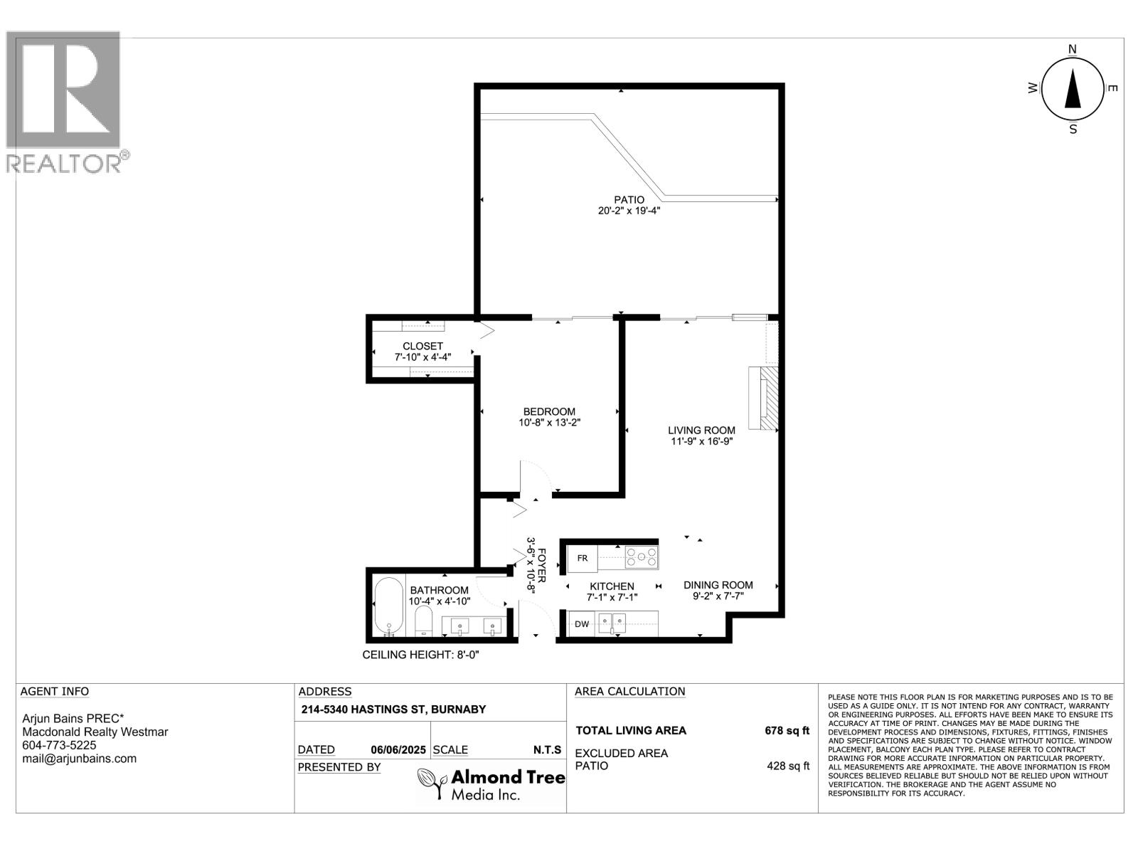
214 5340 HASTINGS STREET
Directions Imprimer
214 5340 HASTINGS STREET 429 000 $
Prochaine visite libre
7
févr.
429 000 $
Masquer
Favoris

214 5340 HASTINGS STREET
Burnaby, Colombie-Britannique V5B1R1

Numéro MLS® : R3082400
1
Chambres
1
Salles de bain
678
Pieds carrés

Visites libres

7 févr.
12 h - 14 h
8 févr.
12 h - 14 h
Ajouter au calendrier

Résumé de la propriété

Type de propriété
Unifamiliale
Type de bâtiment
Appartement
Superficie
678 pi2
Titre
Copropriété divise
Superficie du terrain
0
Date de construction
1975
Impôt foncier annuel
1 378,02 $
Type de stationnement
Stationnement souterrain
Sur REALTOR.ca depuis
12 jours

Prix et historique

Date Statut Prix vendu
3 nov. 2020 Vente conclue 325 000 $

Édifice

Salles de bain
Total
1
Caractéristiques intérieures
Appareils électroménagers inclus
Lave-vaisselle, Réfrigérateur, Cuisinière
Accessoires fixes inclus
Draperies/Couvre-fenêtres
Caractéristiques du bâtiment
Caractéristiques
Ascenseur
Commodités qu'offre le bâtiment
Salle d'exercises, Buanderie partagée
Structures
Maison de club, pavillon
Chauffage et refroidissement
Type de chauffage
Plinthes chauffantes, Eau chaude
Caractéristiques du quartier
Caractéristiques de la communauté
Animaux permis avec restrictions
Infos entretien ou copropriété
Frais d'entretien
369,68 $ mois
Stationnement
Type de stationnement
Stationnement souterrain
Nombre total d'espaces de stationnement
1

Mesures

Superficie
678 pi2
Données fournies par : Greater Vancouver REALTORS®
Souhaitez-vous visiter cette propriété?
Demander une visite

Inscriptions semblables

Arjun Bains