Nous utilisons des témoins et d’autres technologies pour assurer le fonctionnement et la sécurité de nos services en ligne, et pour vous offrir une expérience personnalisée. En continuant à utiliser nos services en ligne, vous acceptez notre Politique de confidentialité et les conditions d’utilisation. Pour obtenir des informations sur la façon de régler vos paramètres de confidentialité, veuillez consulter notre Politique sur les témoins.
Masquer
Accueil ON Grand Guelph Comté de Wellington Guelph Old University
180 GORDON Street Unit# 4
Directions Imprimer
180 GORDON Street Unit# 4 1 439 900 $
1 439 900 $
Masquer
Favoris

180 GORDON Street Unit# 4
Guelph, Ontario N1G1X1

Numéro MLS® : 40797804
3
Chambres
3
Salles de bain
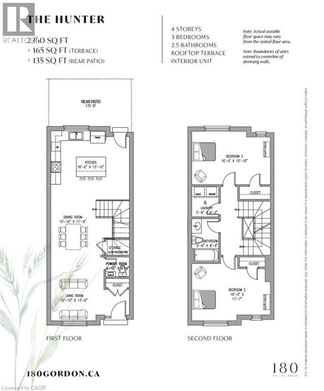
2160
Pieds carrés

Résumé de la propriété

Type de propriété
Unifamiliale
Type de bâtiment
Maison en rangée
Étages
3
Superficie
2160 pi2
Titre
Copropriété divise
Superficie du terrain
Inconnu
Impôt foncier annuel
0 $
Type de stationnement
Garage détaché, Stationnement pour les visiteurs, Stationnement à ciel ouvert
Sur REALTOR.ca depuis
12 jours

Édifice

Chambres
Au-dessus du niveau du sol
3
Salles de bain
Total
3
Partielle
1
Caractéristiques intérieures
Appareils électroménagers inclus
Lave-vaisselle, Sécheuse, Réfrigérateur, Cuisinière, Machine à laver, Hotte
Type de sous-sol
Pas de sous-sol
Caractéristiques du bâtiment
Caractéristiques
Ceinture verte, Balcon, Ouvre-porte de garage automatique
Style
En rangée
Style d'architecture
3 étages
Unités totales
0
Chauffage et refroidissement
Système de refroidissement
Climatisation centrale
Type de chauffage
Air pulsé, (Gaz naturel)
Services publics
Égouts
Égout municipal
Eau
Approvisionnement en eau par la municipalité
Caractéristiques extérieures
Revêtement extérieur
Brique, Pierre, Bardage en vinyle
Caractéristiques du quartier
Commodités à proximité
Parc, Transport en commun, Centres commerciaux
Infos entretien ou copropriété
Frais d'entretien
376,61 $ mois
Les frais d'entretien comprennent
Aménagement de paysage
Stationnement
Type de stationnement
Garage détaché, Stationnement pour les visiteurs, Stationnement à ciel ouvert
Nombre total d'espaces de stationnement
1

Mesures

Superficie
2160 pi2
Superficie finie au-dessus du niveau du sol
2160 pi2
Source : Constructeur

Pièces

MétriqueImpérial
Niveau principal
Salle de bain - 2 éléments
Salon
Salle à manger
Cuisine
Deuxième niveau
Buanderie
Salle de bain - 4 éléments
Chambre à coucher
Chambre à coucher
Troisième niveau
Salle de bains complète
Chambre principale
Niveau supérieur
Local de services

Terrain

Caractéristiques du terrain
Vue
Vue sur la rivière
Souhaitez-vous visiter cette propriété?
Demander une visite

Inscriptions semblables

Jacquie Bunker