Nous utilisons des témoins et d’autres technologies pour assurer le fonctionnement et la sécurité de nos services en ligne, et pour vous offrir une expérience personnalisée. En continuant à utiliser nos services en ligne, vous acceptez notre Politique de confidentialité et les conditions d’utilisation. Pour obtenir des informations sur la façon de régler vos paramètres de confidentialité, veuillez consulter notre Politique sur les témoins.
Masquer
Accueil QC Grand Montréal Montréal Dorval Pointe-Marion
857 Ch. du Bord-du-Lac-Lakeshore #C
Directions Imprimer
857 Ch. du Bord-du-Lac-Lakeshore #C 389 000 $
389 000 $
Masquer
Favoris

857 Ch. du Bord-du-Lac-Lakeshore
#C
Dorval, Québec H9S2C7

Numéro MLS® : 13940434
3
Chambres
1
Salles de bain
1075
Pieds carrés

Description de l’inscription

Bienvenue au 857C, chemin du Bord-du-Lac, à Dorval. Ce charmant appartement offre de vastes espaces de vie baignés de lumière naturelle. Il comprend trois grandes CAC, une salle de bain et une cuisine rénovées, ainsi qu'un garage intérieur privé et un grand espace de rangement. Idéalement situé à proximité des centres commerciaux, restaurants, aéroport, train REM, écoles, cégep, parcs, transports en commun et à deux pas du bord du lac Saint-Louis, cette propriété est parfait pour les familles de taille moyenne et les jeunes professionnels. Secteur très recherché par les acheteurs et les locataires! Excellente opportunité d'investissement! (43218584)

Résumé de la propriété

Type de propriété
Unifamiliale
Type de bâtiment
Appartement
Superficie
1075 pi2
Quartier
Sud Ouest
Titre
Copropriété divise
Date de construction
1987
Type de stationnement
Garage, Garage intégré
Sur REALTOR.ca depuis
13 jours

Édifice

Salles de bain
Total
1
Partielle
1
Caractéristiques du bâtiment
Caractéristiques
Terrain plat, Fenêtres aluminium, Fenêtres coulissantes
Style
En rangée
Chauffage et refroidissement
Type de chauffage
(Électrique)
Services publics
Égouts
Égout municipal
Eau
Approvisionnement en eau par la municipalité
Caractéristiques extérieures
Style de toiture
Bardeaux d'asphalte
Revêtement extérieur
Brique
Caractéristiques du quartier
Commodités à proximité
Autoroute, Un cégep, Terrain de golf, Un hôpital, Parc, Écoles, Transport en commun
Infos entretien ou copropriété
Frais d'entretien
497 $ mois
Stationnement
Type de stationnement
Garage, Garage intégré
Nombre total d'espaces de stationnement
1

Mesures

Superficie
1075 pi2

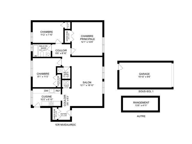
Pièces

MétriqueImpérial
Deuxième niveau
Salon
Cuisine
Chambre principale
Chambre à coucher
Chambre à coucher
Salle de bain
Autre
Salle de bains partielle
Autre
Buanderie
Autre

Terrain

Autres informations sur la propriété
Type de Zonage
Résidentiel
Caractéristiques de la ferme
Type de ferme
Autre
Caractéristiques du bord de l'eau
Nom du secteur riverain
Lac St-Louis
Souhaitez-vous visiter cette propriété?
Demander une visite

Inscriptions semblables

George Tanev