Nous utilisons des témoins et d’autres technologies pour assurer le fonctionnement et la sécurité de nos services en ligne, et pour vous offrir une expérience personnalisée. En continuant à utiliser nos services en ligne, vous acceptez notre Politique de confidentialité et les conditions d’utilisation. Pour obtenir des informations sur la façon de régler vos paramètres de confidentialité, veuillez consulter notre Politique sur les témoins.
Masquer
Accueil QC Grand Montréal Laval Pont-Viau
Rue St-André
Directions Imprimer
Rue St-André 319 000 $
319 000 $
Masquer
Favoris

Rue St-André
Laval (Pont-Viau), Québec H7G2Z9

Numéro MLS® : 11313352

Description de l’inscription

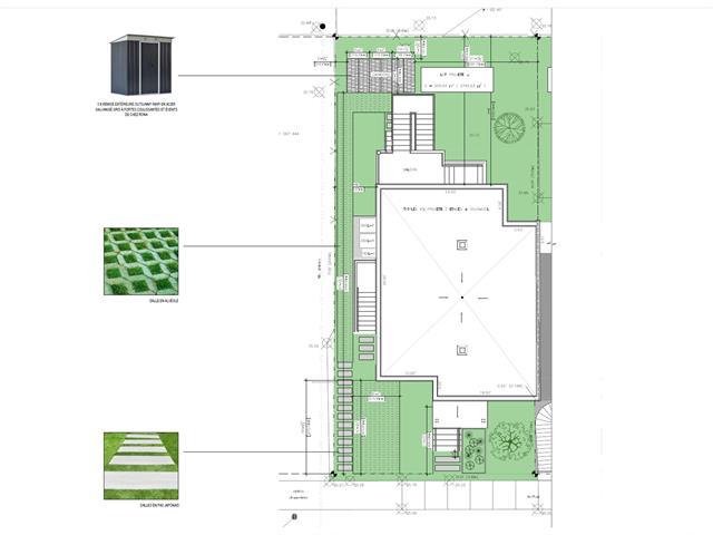
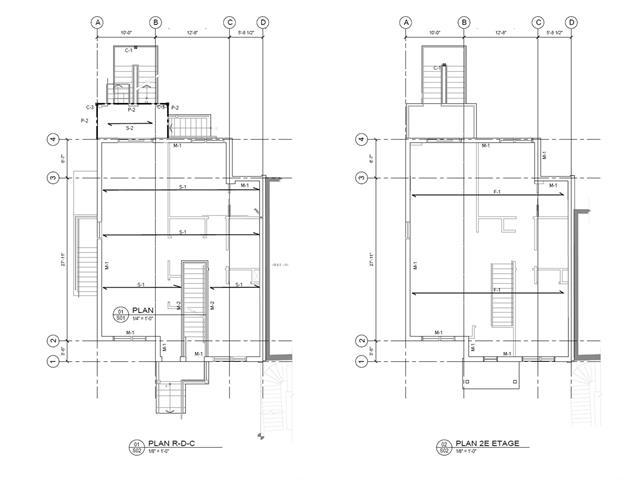
OPPORTUNITÉ RARE À LAVAL. Terrain situé sur la rue St-André, vendu avec plan de construction pour triplex/semi-détaché. Frais de PARC déja payé. Emplacement stratégique à forte demande, REVENUS potentiel de 67 200.00$/années idéal pour investisseur ou projet d'auto-construction. Secteur recherché offrant un accès rapide aux écoles, parcs, commerces, services essentiels et transports en commun. Quartier dynamique reconnu pour sa qualité de vie et son excellent potentiel de valorisation. Produit rare sur le marché. (40555207)

Résumé de la propriété

Type de propriété
Terrain vacant
Superficie du terrain
250.37 m2
Sur REALTOR.ca depuis
22 jours

Édifice

Caractéristiques du bâtiment
Caractéristiques
Terrain plat
Services publics
Égouts
Pas de réseau d'égouts
Caractéristiques du quartier
Commodités à proximité
Autoroute, Un cégep, Terrain de golf, Un hôpital, Parc, Écoles, Transport en commun, Université

Terrain

Caractéristiques du terrain
Façade
23.47 m
Autres informations sur la propriété
Type de Zonage
Résidentiel
Caractéristiques de la ferme
Type de ferme
Autre
Souhaitez-vous visiter cette propriété?
Demander une visite

Inscriptions semblables

Youthana Radisson Khuy