Nous utilisons des témoins et d’autres technologies pour assurer le fonctionnement et la sécurité de nos services en ligne, et pour vous offrir une expérience personnalisée. En continuant à utiliser nos services en ligne, vous acceptez notre Politique de confidentialité et les conditions d’utilisation. Pour obtenir des informations sur la façon de régler vos paramètres de confidentialité, veuillez consulter notre Politique sur les témoins.
Masquer
Accueil AB Grand Edmonton Division No. 11 Spruce Grove
1214 MCLEOD AV
Directions Imprimer
1214 MCLEOD AV 484 250 $
Prochaine visite libre
7
févr.
484 250 $
Masquer
Favoris

1214 MCLEOD AV
Spruce Grove, Alberta T7X4B7

Numéro MLS® : E4468971
4
Chambres
3
Salles de bain
1608
Pieds carrés

Visites libres

7 févr.
13 h - 15 h
Ajouter au calendrier

Résumé de la propriété

Type de propriété
Unifamiliale
Type de bâtiment
Unifamilial
Étages
2
Superficie
1608 pi2
Titre
Tenure franche
Superficie du terrain
321.6 m2
Date de construction
2025
Type de stationnement
Aire de stationnement
Sur REALTOR.ca depuis
31 jours

Description officielle

Plan :- 2221762 Block :- 3 Lot :- 22

Édifice

Salles de bain
Total
3
Caractéristiques intérieures
Appareils électroménagers inclus
Lave-vaisselle, Hotte, Micro-ondes, Réfrigérateur, Cuisinière, Couvre-fenêtre
Type de sous-sol
Sous-sol complet (Non aménagé)
Caractéristiques du bâtiment
Caractéristiques
Maison sans animaux, Maison sans fumeurs
Style
Isolée
Protection contre les incendies
Détecteurs de fumée
Commodités qu'offre le bâtiment
Plafond – 9 pi
Chauffage et refroidissement
Système de refroidissement
Climatisation centrale
Type de foyer
Foyer encastré (Électricité)
Type de chauffage
Air pulsé
Caractéristiques du quartier
Commodités à proximité
Transport en commun, Écoles, Centres commerciaux
Stationnement
Type de stationnement
Aire de stationnement

Mesures

Superficie
1608 pi2

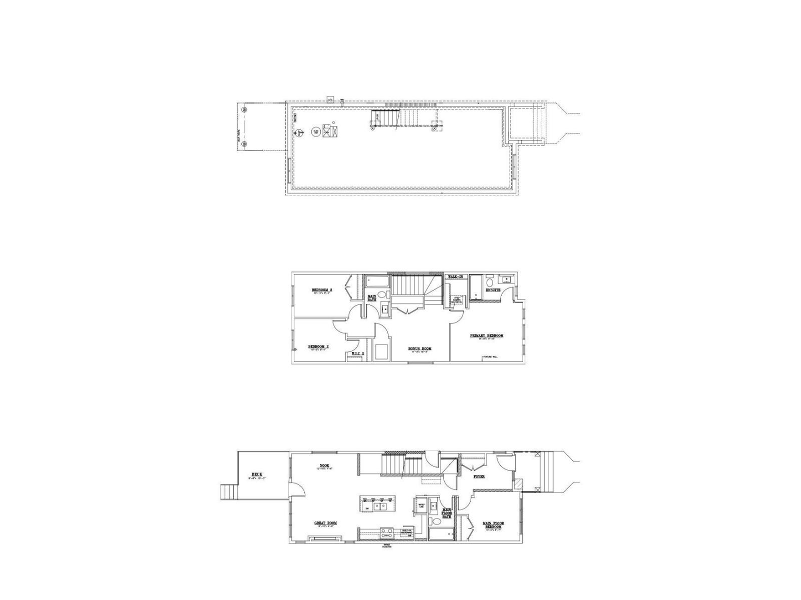
Pièces

MétriqueImpérial
Niveau principal
Salon
Salle à manger
Cuisine
Quatrième chambre
Niveau supérieur
Chambre principale
Deuxième chambre
Troisième chambre
Pièce supplémentaire
Buanderie
Données fournies par : REALTORS® Association of Edmonton
Souhaitez-vous visiter cette propriété?
Demander une visite

Inscriptions semblables

David Lam