Nous utilisons des témoins et d’autres technologies pour assurer le fonctionnement et la sécurité de nos services en ligne, et pour vous offrir une expérience personnalisée. En continuant à utiliser nos services en ligne, vous acceptez notre Politique de confidentialité et les conditions d’utilisation. Pour obtenir des informations sur la façon de régler vos paramètres de confidentialité, veuillez consulter notre Politique sur les témoins.
Masquer
Accueil ON Grand Orillia Comté de Simcoe Orillia
84 DIANA DRIVE
Directions Imprimer
84 DIANA DRIVE 1 288 000 $
Depuis 6 heures
1 288 000 $
Masquer
Favoris

84 DIANA DRIVE
Orillia, Ontario L3V0E2

Numéro MLS® : S12637772
4 + 2
Chambres
5
Salles de bain
2000 - 2500
Pieds carrés

Résumé de la propriété

Type de propriété
Unifamiliale
Type de bâtiment
Unifamilial
Étages
2
Superficie
2000 - 2500 pi2
Titre
Tenure franche
Superficie du terrain
24.7 x 137.2 FT ; 24.69ft x 137.22ft x 75.55ft x 110.64ft|moins de 1/2 acre
Âge de l'édifice
6 à 15 ans
Impôt foncier annuel
6 168 $
Type de stationnement
Garage
Sur REALTOR.ca depuis
6 heures

Édifice

Chambres
Au-dessus du niveau du sol
4
Au-dessous du niveau du sol
2
Salles de bain
Total
5
Partielle
1
Caractéristiques intérieures
Appareils électroménagers inclus
Télécommande(s) d'ouvre-porte de garage, Aspirateur central, Chauffe-eau, Adoucisseur d'eau
Couvre-plancher
plancher de bois franc, Vinyle, Tuile de porcelaine, Carrelage
Caractéristiques du sous-sol
Logement au sous-sol, Sous-sol à niveau, Sous-sol à escalier, Entrée distincte
Type de sous-sol
AménagéSous-sol complet, Autre, voir remarques
Caractéristiques du bâtiment
Caractéristiques
Belvédère, Logement accessoire, Appartement accessoire
Type de fondation
Blocs de béton
Style
Isolée
Protection contre les incendies
Système de sécurité
Chauffage et refroidissement
Système de refroidissement
Climatisation centrale
Type de chauffage
Air pulsé (Gaz naturel)
Services publics
Services publics disponibles
Service du câble (Installé), Électricité (Installé), Service d'égout (Installé)
Égouts
Égout sanitaire
Eau
Approvisionnement en eau par la municipalité
Caractéristiques extérieures
Revêtement extérieur
Brique, Bardage en vinyle
Caractéristiques du quartier
Caractéristiques de la communauté
Centre communautaire
Commodités à proximité
Plage, Un hôpital, Transport en commun
Stationnement
Type de stationnement
Garage
Nombre total d'espaces de stationnement
6

Mesures

Superficie
2000 - 2500 pi2

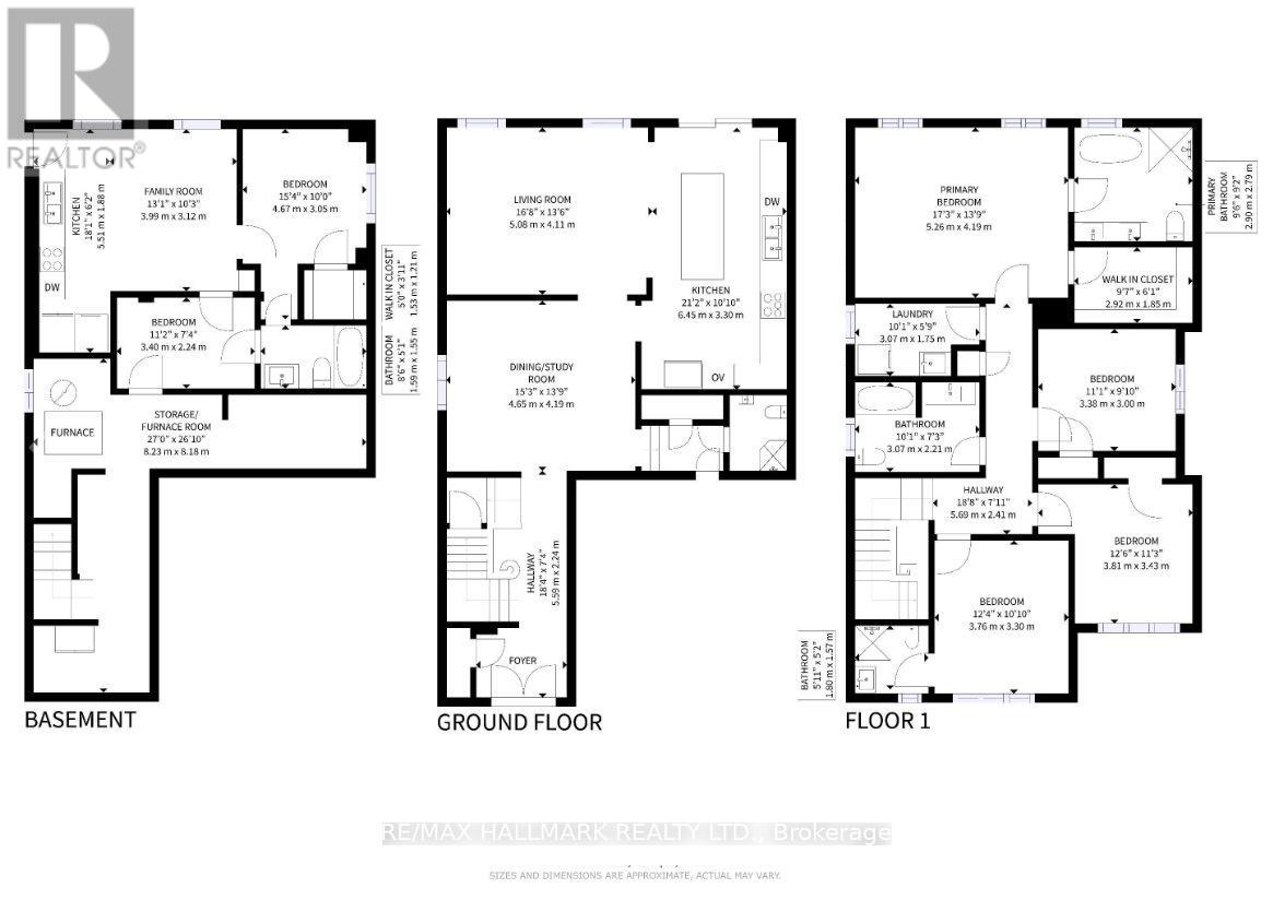
Pièces

MétriqueImpérial
Niveau principal
Salon
Salle à manger
Cuisine
Vestibule
Deuxième niveau
Chambre principale
Deuxième chambre
Troisième chambre
Quatrième chambre
Buanderie
Sous-sol
Salle familiale
Chambre à coucher
Coin repos
Cuisine

Terrain

Caractéristiques du terrain
Façade
24 pi 8 po
Superficie du terrain
137 pi 2 po
Autres informations sur la propriété
Servitudes
Inconnu
Données fournies par : Toronto Regional Real Estate Board
Souhaitez-vous visiter cette propriété?
Demander une visite

Inscriptions semblables

ZAID AL-BARGASH