Nous utilisons des témoins et d’autres technologies pour assurer le fonctionnement et la sécurité de nos services en ligne, et pour vous offrir une expérience personnalisée. En continuant à utiliser nos services en ligne, vous acceptez notre Politique de confidentialité et les conditions d’utilisation. Pour obtenir des informations sur la façon de régler vos paramètres de confidentialité, veuillez consulter notre Politique sur les témoins.
Masquer
Accueil ON Kitchener - Cambridge - Waterloo Région de Waterloo Cambridge Langs Farm
1520 CONCESSION ROAD
Directions Imprimer
1520 CONCESSION ROAD 849 900 $
Modification du prix le 2026/01/25
849 900 $
-29 000 $
878 900 $
Masquer
Favoris

1520 CONCESSION ROAD
Cambridge, Ontario N3H4L9

Numéro MLS® : X12636320
4
Chambres
2
Salles de bain
700 - 1100
Pieds carrés

Résumé de la propriété

Type de propriété
Unifamiliale
Type de bâtiment
Unifamilial
Étages
1
Superficie
700 - 1100 pi2
Titre
Tenure franche
Superficie du terrain
70 x 102 FT
Âge de l'édifice
51 à 99 ans
Impôt foncier annuel
5 315 $
Type de stationnement
Garage attenant, Garage
Sur REALTOR.ca depuis
49 jours

Édifice

Chambres
Au-dessus du niveau du sol
4
Salles de bain
Total
2
Caractéristiques intérieures
Appareils électroménagers inclus
Toutes les options, Stores, Lave-vaisselle, Micro-ondes, Cuisinière, Couvre-fenêtre, Réfrigérateur
Caractéristiques du sous-sol
Entrée distincte
Type de sous-sol
AménagéSous-sol complet
Caractéristiques du bâtiment
Caractéristiques
Appartement accessoire
Type de fondation
Béton coulé
Style
Isolée
Style d'architecture
Bungalow
Location de matérial incluse
Chauffe-eau
Structures
Terrasse(s)
Chauffage et refroidissement
Système de refroidissement
Climatisation centrale
Type de chauffage
Air pulsé (Gaz naturel)
Services publics
Égouts
Égout sanitaire
Eau
Approvisionnement en eau par la municipalité
Caractéristiques extérieures
Revêtement extérieur
Brique, Bardage en vinyle
Piscine
Piscine creusée
Stationnement
Type de stationnement
Garage attenant, Garage
Nombre total d'espaces de stationnement
10

Mesures

Superficie
700 - 1100 pi2

Pièces

MétriqueImpérial
Niveau principal
Chambre principale
Deuxième chambre
Troisième chambre
Salle de bain
Cuisine
Salon
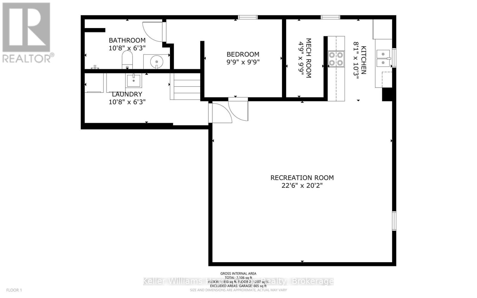
Sous-sol
Cuisine
Quatrième chambre
Salle de bain
Buanderie
Salle de jeux, récréative

Terrain

Caractéristiques du terrain
Façade
70 pi
Superficie du terrain
102 pi
Données fournies par : OnePoint - The Lakelands
Souhaitez-vous visiter cette propriété?
Demander une visite

Inscriptions semblables

OWEN LENNOX