Nous utilisons des témoins et d’autres technologies pour assurer le fonctionnement et la sécurité de nos services en ligne, et pour vous offrir une expérience personnalisée. En continuant à utiliser nos services en ligne, vous acceptez notre Politique de confidentialité et les conditions d’utilisation. Pour obtenir des informations sur la façon de régler vos paramètres de confidentialité, veuillez consulter notre Politique sur les témoins.
Masquer
Accueil ON Grand Toronto Toronto Vieux Toronto St Lawrence-East Bayfront-The Islands West Don Lands
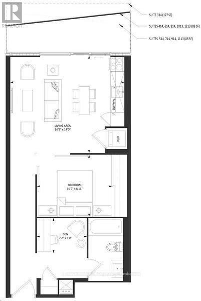
814 - 60 TANNERY ROAD
Directions Imprimer
814 - 60 TANNERY ROAD 2 300 $/mois
Depuis 4 heures
2 300 $/mois
Masquer
Favoris

814 - 60 TANNERY ROAD
Toronto (Waterfront Communities), Ontario M5A0S8

Numéro MLS® : C12633122
1 + 1
Chambres
1
Salles de bain
600 - 699
Pieds carrés

Résumé de la propriété

Type de propriété
Unifamiliale
Type de bâtiment
Appartement
Superficie
600 - 699 pi2
Titre
Copropriété divise
Type de stationnement
Garage
Sur REALTOR.ca depuis
4 heures

Édifice

Chambres
Au-dessus du niveau du sol
1
Au-dessous du niveau du sol
1
Salles de bain
Total
1
Caractéristiques intérieures
Appareils électroménagers inclus
Stores, Lave-vaisselle, Sécheuse, Micro-ondes, Cuisinière, Machine à laver, Réfrigérateur
Couvre-plancher
plancher en stratifié
Type de sous-sol
Pas de sous-sol
Caractéristiques du bâtiment
Caractéristiques
Balcon, Sans tapis
Commodités qu'offre le bâtiment
Service de sécurité/conciergerie, Salle d'exercises, Salle de réception, Stationnement pour les visiteurs, Armoire vestiaire
Chauffage et refroidissement
Système de refroidissement
Climatisation centrale
Type de chauffage
Air pulsé (Gaz naturel)
Caractéristiques extérieures
Revêtement extérieur
Béton
Caractéristiques du quartier
Caractéristiques de la communauté
Animaux permis avec restrictions
Infos entretien ou copropriété
Société de gestion de l'entretien
Crossbridge Condominium Services (416) 360-4356
Stationnement
Type de stationnement
Garage
Nombre total d'espaces de stationnement
0

Mesures

Superficie
600 - 699 pi2

Pièces

MétriqueImpérial
Niveau principal
Salon
Salle à manger
Cuisine
Chambre à coucher
Coin repos
Données fournies par : Toronto Regional Real Estate Board
Souhaitez-vous visiter cette propriété?
Demander une visite

Inscriptions semblables

STELLA KVATERMAN