Nous utilisons des témoins et d’autres technologies pour assurer le fonctionnement et la sécurité de nos services en ligne, et pour vous offrir une expérience personnalisée. En continuant à utiliser nos services en ligne, vous acceptez notre Politique de confidentialité et les conditions d’utilisation. Pour obtenir des informations sur la façon de régler vos paramètres de confidentialité, veuillez consulter notre Politique sur les témoins.
Masquer
Accueil ON St. Catharines - Niagara Région de Niagara Lincoln Beamsville North Beamsville
4319 AREJAY AVENUE
Directions Imprimer
4319 AREJAY AVENUE 839 900 $
839 900 $
Masquer
Favoris

4319 AREJAY AVENUE
Lincoln (Beamsville), Ontario L0R1B6

Numéro MLS® : X12516548
2 + 2
Chambres
3
Salles de bain
700 - 1100
Pieds carrés

Résumé de la propriété

Type de propriété
Unifamiliale
Type de bâtiment
Unifamilial
Étages
1
Superficie
700 - 1100 pi2
Titre
Tenure franche
Superficie du terrain
41.7 x 101.7 FT
Impôt foncier annuel
5 045 $
Type de stationnement
Garage attenant, Garage
Sur REALTOR.ca depuis
39 jours

Édifice

Chambres
Au-dessus du niveau du sol
2
Au-dessous du niveau du sol
2
Salles de bain
Total
3
Caractéristiques intérieures
Appareils électroménagers inclus
Lave-vaisselle, Sécheuse, Four, Hotte, Plaque de cuisson, Cuisinière, Machine à laver, Réfrigérateur
Caractéristiques du sous-sol
Entrée distincte
Type de sous-sol
Sous-sol complet
Caractéristiques du bâtiment
Caractéristiques
Appartement accessoire
Type de fondation
Fondation en béton
Style
Isolée
Style d'architecture
Bungalow
Location de matérial incluse
Chauffe-eau
Structures
Terrasse
Chauffage et refroidissement
Système de refroidissement
Climatisation centrale
Type de chauffage
Air pulsé (Gaz naturel)
Services publics
Égouts
Égout sanitaire
Eau
Approvisionnement en eau par la municipalité
Caractéristiques extérieures
Revêtement extérieur
Brique
Stationnement
Type de stationnement
Garage attenant, Garage
Nombre total d'espaces de stationnement
5

Mesures

Superficie
700 - 1100 pi2

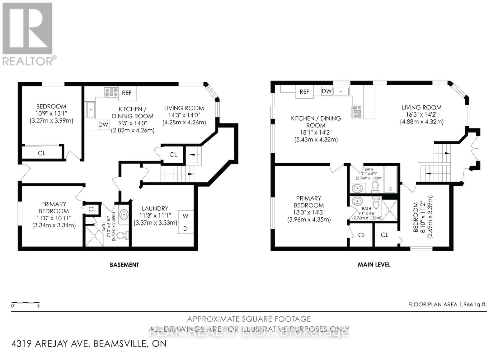
Pièces

MétriqueImpérial
Niveau principal
Salon
Cuisine
Chambre à coucher
Deuxième chambre
Salle de bain
Salle de bain
Sous-sol
Salle de bain
Cuisine
Salon
Troisième chambre
Quatrième chambre

Terrain

Caractéristiques du terrain
Façade
41 pi 8 po
Superficie du terrain
101 pi 8 po
Données fournies par : Toronto Regional Real Estate Board
Souhaitez-vous visiter cette propriété?
Demander une visite

Inscriptions semblables

Ana Lahosky