Nous utilisons des témoins et d’autres technologies pour assurer le fonctionnement et la sécurité de nos services en ligne, et pour vous offrir une expérience personnalisée. En continuant à utiliser nos services en ligne, vous acceptez notre Politique de confidentialité et les conditions d’utilisation. Pour obtenir des informations sur la façon de régler vos paramètres de confidentialité, veuillez consulter notre Politique sur les témoins.
Masquer
Accueil ON Grand London Comté de Middlesex London Lambeth
LOT 38 FALLINGBROOK CRESCENT
Directions Imprimer
LOT 38 FALLINGBROOK CRESCENT 1 490 950 $
Prochaine visite libre
20
déc.
1 490 950 $
Masquer
Favoris

LOT 38 FALLINGBROOK CRESCENT
London South (South V), Ontario N6P1H5

Numéro MLS® : X12505410
4
Chambres
4
Salles de bain
2500 - 3000
Pieds carrés

Visites libres

20 déc.
13 h - 15 h
Ajouter au calendrier

Résumé de la propriété

Type de propriété
Unifamiliale
Type de bâtiment
Unifamilial
Étages
2
Superficie
2500 - 3000 pi2
Titre
Tenure franche
Superficie du terrain
50 x 152 FT
Âge de l'édifice
Bâtiment neuf
Impôt foncier annuel
0 $
Type de stationnement
Garage attenant, Garage
Sur REALTOR.ca depuis
41 jours

Édifice

Chambres
Au-dessus du niveau du sol
4
Salles de bain
Total
4
Partielle
1
Caractéristiques intérieures
Appareils électroménagers inclus
Télécommande(s) d'ouvre-porte de garage, Compteur d'eau
Type de sous-sol
Non aménagé
Caractéristiques du bâtiment
Caractéristiques
Terrain plat
Type de fondation
Béton coulé
Style
Isolée
Commodités qu'offre le bâtiment
Foyer(s)
Chauffage et refroidissement
Système de refroidissement
Climatisation centrale, Échangeur d'air
Foyer
1
Type de chauffage
Air pulsé (Électrique)
Services publics
Services publics disponibles
Service du câble (Installé), Électricité (Installé), Service d'égout (Installé)
Égouts
Égout sanitaire
Eau
Approvisionnement en eau par la municipalité
Caractéristiques extérieures
Revêtement extérieur
Brique, Aluminium
Caractéristiques du quartier
Commodités à proximité
Écoles
Stationnement
Type de stationnement
Garage attenant, Garage
Nombre total d'espaces de stationnement
4

Mesures

Superficie
2500 - 3000 pi2

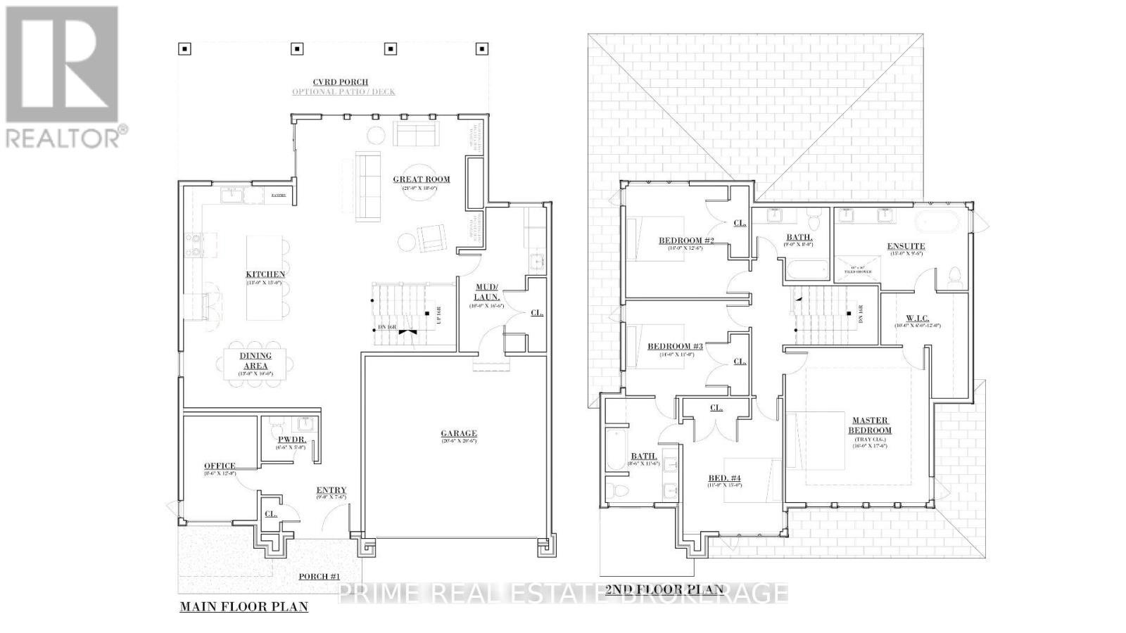
Pièces

MétriqueImpérial
Niveau principal
Bureau
Salle à manger
Cuisine
Grande salle
Buanderie
Deuxième niveau
Salle de bain
Salle de bain
Salle de bain
Chambre principale
Deuxième chambre
Troisième chambre
Quatrième chambre

Terrain

Caractéristiques du terrain
Façade
50 pi
Superficie du terrain
152 pi
Souhaitez-vous visiter cette propriété?
Demander une visite

Inscriptions semblables

JUSTIN KONIKOW