Nous utilisons des témoins et d’autres technologies pour assurer le fonctionnement et la sécurité de nos services en ligne, et pour vous offrir une expérience personnalisée. En continuant à utiliser nos services en ligne, vous acceptez notre Politique de confidentialité et les conditions d’utilisation. Pour obtenir des informations sur la façon de régler vos paramètres de confidentialité, veuillez consulter notre Politique sur les témoins.
Masquer
Accueil AB Grand Edmonton Division No. 11 Edmonton Parkview
14344 92A AV NW
Directions Imprimer
14344 92A AV NW 1 178 000 $
1 178 000 $
Masquer
Favoris

14344 92A AV NW
Edmonton, Alberta T5R5E4

Numéro MLS® : E4463404
5
Chambres
5
Salles de bain
2312
Pieds carrés

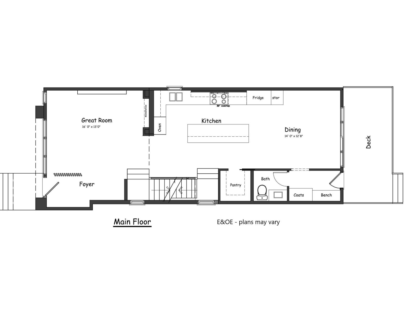
Résumé de la propriété

Type de propriété
Unifamiliale
Type de bâtiment
Unifamilial
Étages
3
Superficie
2312 pi2
Titre
Tenure franche
Date de construction
2025
Type de stationnement
Garage détaché
Sur REALTOR.ca depuis
50 jours

Description officielle

Plan :- 2520330 Block :- 6 Lot :- 5A

Édifice

Salles de bain
Total
5
Partielle
1
Caractéristiques intérieures
Type de sous-sol
Sous-sol complet (Aménagé)
Caractéristiques du bâtiment
Caractéristiques
Voir remarques
Style
Isolée
Chauffage et refroidissement
Type de foyer
Inconnu (Électricité)
Type de chauffage
Air pulsé
Stationnement
Type de stationnement
Garage détaché

Mesures

Superficie
2312 pi2

Pièces

Au sol
Chambre principale
Deuxième chambre
Troisième chambre
Quatrième chambre
Sous-sol
Cinquième chambre
Données fournies par : REALTORS® Association of Edmonton
Souhaitez-vous visiter cette propriété?
Demander une visite

Inscriptions semblables

Bill Reid