Nous utilisons des témoins et d’autres technologies pour assurer le fonctionnement et la sécurité de nos services en ligne, et pour vous offrir une expérience personnalisée. En continuant à utiliser nos services en ligne, vous acceptez notre Politique de confidentialité et les conditions d’utilisation. Pour obtenir des informations sur la façon de régler vos paramètres de confidentialité, veuillez consulter notre Politique sur les témoins.
Masquer
Accueil BC Central Kootenay Nelson
2102 Falls Street
Directions Imprimer
2102 Falls Street 989 900 $
989 900 $
Masquer
Favoris

2102 Falls Street
Nelson, Colombie-Britannique V1L1K4

Numéro MLS® : 10366502
4
Chambres
3
Salles de bain
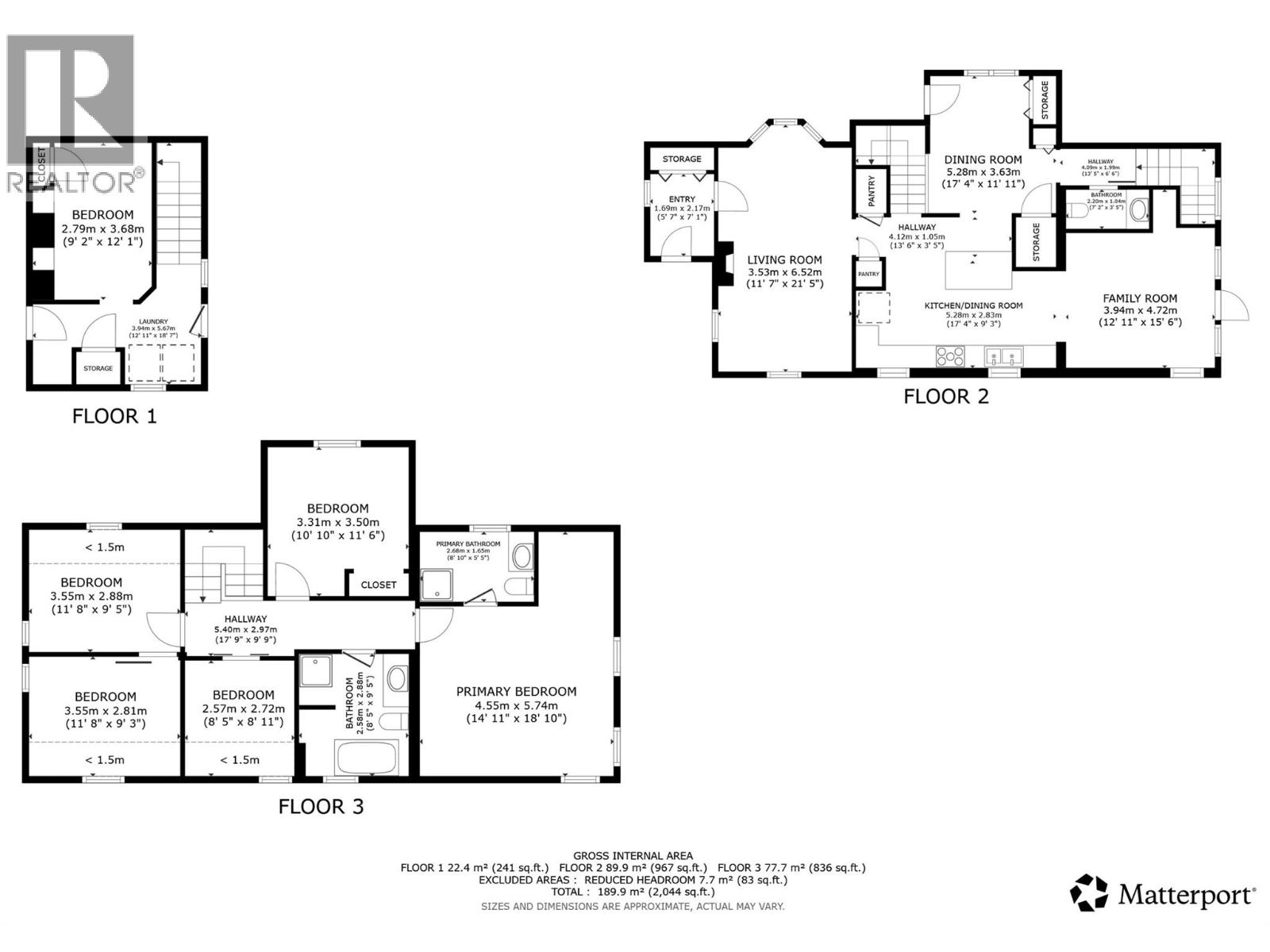
2122
Pieds carrés

Résumé de la propriété

Type de propriété
Unifamiliale
Type de bâtiment
Unifamilial
Étages
2
Superficie
2122 pi2
Titre
Tenure franche
Superficie du terrain
0.23 a|moins de 1 acre
Date de construction
1913
Impôt foncier annuel
5 816,30 $
Nombre total d'espaces de stationnement
2
Sur REALTOR.ca depuis
53 jours

Prix et historique

Date Statut Prix vendu
11 janv. 1997 Vente conclue 105 000 $

Édifice

Salles de bain
Total
3
Partielle
1
Caractéristiques du bâtiment
Style
Isolée
Chauffage et refroidissement
Type de chauffage
Plinthes chauffantes, Air pulsé
Services publics
Égouts
Égout municipal
Eau
Approvisionnement en eau par la municipalité
Caractéristiques extérieures
Style de toiture
Bardeaux d'asphalte
Revêtement extérieur
Autre
Stationnement
Nombre total d'espaces de stationnement
2

Mesures

Superficie
2122 pi2

Pièces

MétriqueImpérial
Niveau principal
Salle de bains partielle
Salle familiale
Salle à manger
Cuisine
Salon
Vestibule
Deuxième niveau
Chambre à coucher
Chambre à coucher
Salle de bains complète
Chambre à coucher
Salle de bains complète communicante
Chambre principale
Sous-sol
Autre
Buanderie
Logement secondaire
Salle de bains complète
Cuisine
Chambre principale
Salon
Données fournies par : Association of Interior REALTORS®
Souhaitez-vous visiter cette propriété?
Demander une visite

Inscriptions semblables

Karen Bennett