Nous utilisons des témoins et d’autres technologies pour assurer le fonctionnement et la sécurité de nos services en ligne, et pour vous offrir une expérience personnalisée. En continuant à utiliser nos services en ligne, vous acceptez notre Politique de confidentialité et les conditions d’utilisation. Pour obtenir des informations sur la façon de régler vos paramètres de confidentialité, veuillez consulter notre Politique sur les témoins.
Masquer
Accueil ON Grand Sudbury Azilda
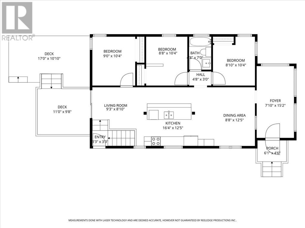
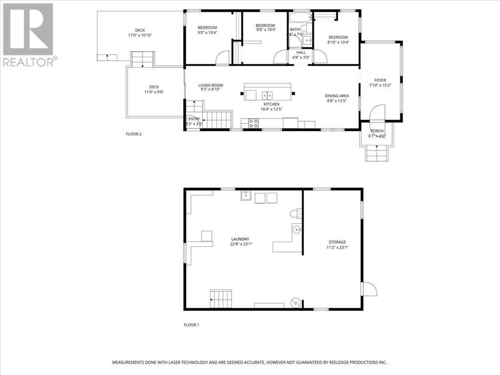
235-237 Landry Street
Directions Imprimer
235-237 Landry Street 719 900 $
719 900 $
Masquer
Favoris

235-237 Landry Street
Azilda, Ontario P0M1B0

Numéro MLS® : 2125128

Résumé de la propriété

Type de propriété
Multifamilial
Superficie du terrain
10 890 - 21 799 pi2 (1/4 - 1/2 acre)
Type de stationnement
Gravier
Sur REALTOR.ca depuis
60 jours

Édifice

Caractéristiques intérieures
Type de sous-sol
Sous-sol complet
Caractéristiques du bâtiment
Type de fondation
Blocs de béton
Entreposage
Entreposage à l'extérieur
Location de matérial incluse
Appareil de chauffage, Autre
Unités totales
4
Chauffage et refroidissement
Type de chauffage
Fournaise, Chaudière à haut rendement
Services publics
Égouts
Égout municipal
Eau
Approvisionnement en eau par la municipalité
Caractéristiques extérieures
Style de toiture
Bardeaux d'asphalte, matériau pour toit métallique
Revêtement extérieur
Bardage en vinyle
Caractéristiques du quartier
Commodités à proximité
Parc, Transport en commun, Écoles, Centres commerciaux
Stationnement
Type de stationnement
Gravier

Terrain

Autres informations sur la propriété
Accès
Accès toute l'année
Données fournies par : Sudbury Real Estate Board
Souhaitez-vous visiter cette propriété?
Demander une visite

Inscriptions semblables

GARY DOYLE