Nous utilisons des témoins et d’autres technologies pour assurer le fonctionnement et la sécurité de nos services en ligne, et pour vous offrir une expérience personnalisée. En continuant à utiliser nos services en ligne, vous acceptez notre Politique de confidentialité et les conditions d’utilisation. Pour obtenir des informations sur la façon de régler vos paramètres de confidentialité, veuillez consulter notre Politique sur les témoins.
Masquer
Accueil BC Cowichan Valley Cowichan Valley A
1490 Finlayson View Pl
Directions Imprimer
1490 Finlayson View Pl 1 550 000 $
1 550 000 $
Masquer
Favoris

1490 Finlayson View Pl
Shawnigan Lake, Colombie-Britannique V0R2W3

Numéro MLS® : 1016094
4
Chambres
4
Salles de bain
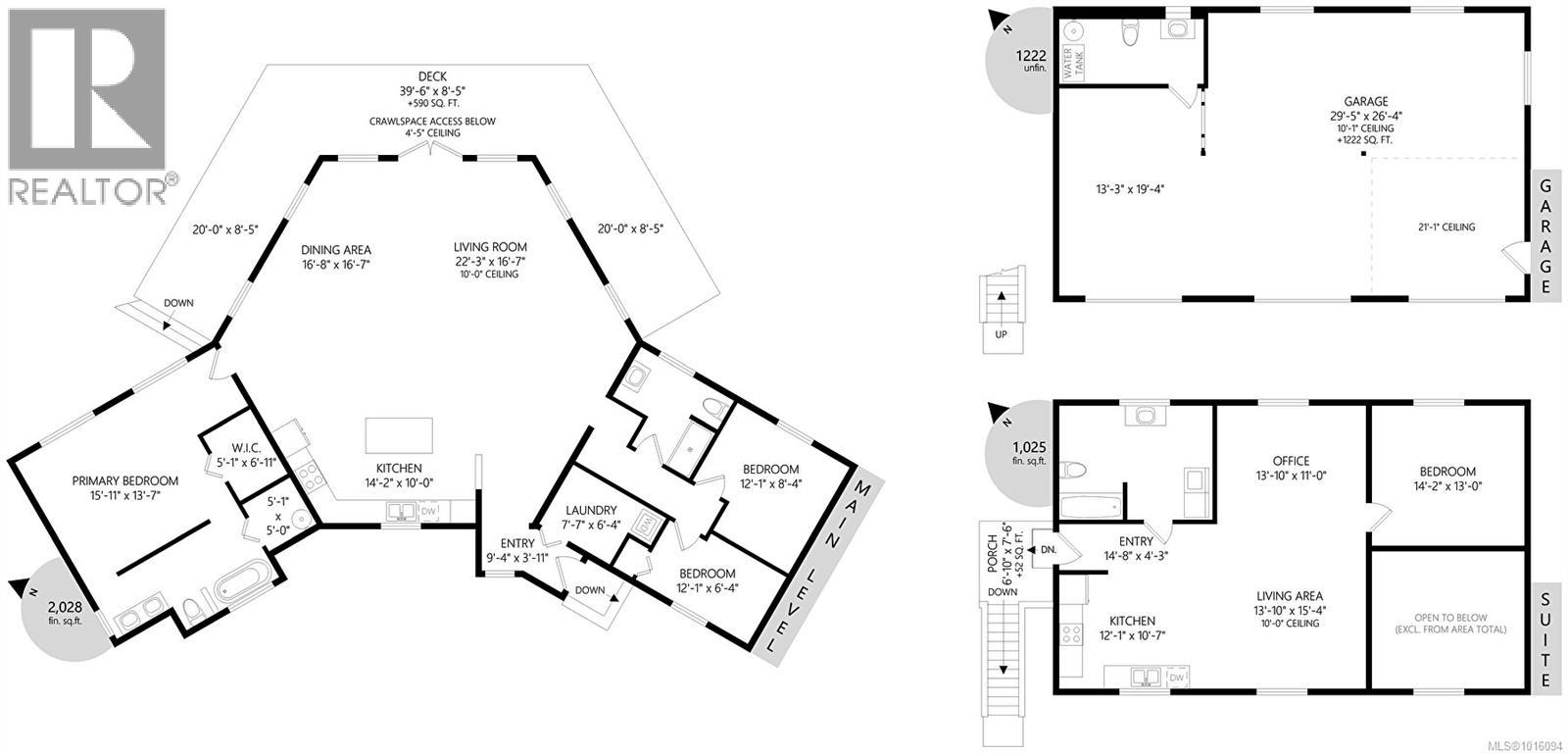
4275
Pieds carrés

Résumé de la propriété

Type de propriété
Unifamiliale
Type de bâtiment
Unifamilial
Superficie
4275 pi2
Titre
Copropriété divise
Superficie du terrain
5.9 a
Date de construction
2021
Impôt foncier annuel
3 843,50 $
Nombre total d'espaces de stationnement
10
Sur REALTOR.ca depuis
112 jours

Édifice

Salles de bain
Total
4
Caractéristiques intérieures
Appareils électroménagers inclus
Lave-vaisselle, Réfrigérateur, Cuisinière, Machine à laver, Sécheuse
Caractéristiques du bâtiment
Caractéristiques
Superficie en acres, Autre
Style d'architecture
Côte ouest
Protection contre les incendies
Système de gicleurs
Structures
Remise, Atelier
Chauffage et refroidissement
Système de refroidissement
Climatisé, Entièrement climatisé
Type de chauffage
Thermopompe, (Électrique)
Caractéristiques du quartier
Caractéristiques de la communauté
Animaux admissibles, Conçu pour familles
Stationnement
Nombre total d'espaces de stationnement
10

Mesures

Superficie
4275 pi2
Superficie totale aménagée
3053 pi2

Pièces

MétriqueImpérial
Niveau principal
Entrée
Chambre à coucher
Chambre à coucher
Salle de bain
Buanderie
Chambres communicantes, agencement en suite
Chambre principale
Salle à manger
Salon
Cuisine
Bâtiment auxiliaire
Salle de bain
Chambre à coucher
Salle de bain
Autre
Salon
Cuisine

Terrain

Caractéristiques du terrain
Vue
Vue sur la ville, Vue sur la montagne, Vue sur l'océan, Vue sur une vallée
Autres informations sur la propriété
Accès
Accès routier
Type de Zonage
Résidence rurale
Données fournies par : Victoria Real Estate Board
Souhaitez-vous visiter cette propriété?
Demander une visite

Inscriptions semblables

Debbie Tracz