Nous utilisons des témoins et d’autres technologies pour assurer le fonctionnement et la sécurité de nos services en ligne, et pour vous offrir une expérience personnalisée. En continuant à utiliser nos services en ligne, vous acceptez notre Politique de confidentialité et les conditions d’utilisation. Pour obtenir des informations sur la façon de régler vos paramètres de confidentialité, veuillez consulter notre Politique sur les témoins.
Masquer
Accueil ON District de Nipissing Nipissing Ouest
216 ARTHUR STREET
Directions Imprimer
216 ARTHUR STREET 399 999 $
399 999 $
Masquer
Favoris

216 ARTHUR STREET
West Nipissing (Sturgeon Falls), Ontario P2B1E7

Numéro MLS® : X12454655
4
Chambres
2
Salles de bain
1500 - 2000
Pieds carrés

Résumé de la propriété

Type de propriété
Unifamiliale
Type de bâtiment
Unifamilial
Étages
2
Superficie
1500 - 2000 pi2
Titre
Tenure franche
Superficie du terrain
73 x 99.8 FT
Âge de l'édifice
51 à 99 ans
Impôt foncier annuel
2 059,83 $
Type de stationnement
Garage détaché, Garage
Sur REALTOR.ca depuis
67 jours

Édifice

Chambres
Au-dessus du niveau du sol
4
Salles de bain
Total
2
Caractéristiques intérieures
Appareils électroménagers inclus
Lave-vaisselle, Sécheuse, Micro-ondes, Cuisinière, Machine à laver, Réfrigérateur
Type de sous-sol
Sous-sol complet (Non aménagé)
Caractéristiques du bâtiment
Caractéristiques
Éclairage, Sans tapis, Belvédère
Type de fondation
Pierre, Fondation en béton
Style
Isolée
Commodités qu'offre le bâtiment
Foyer(s)
Location de matérial incluse
Chauffe-eau
Structures
Terrasse, Remise
Chauffage et refroidissement
Système de refroidissement
Climatisation centrale
Foyer
1
Type de foyer
Poêle à bois
Type de chauffage
Air pulsé (Gaz naturel)
Services publics
Égouts
Égout sanitaire
Eau
Approvisionnement en eau par la municipalité
Caractéristiques extérieures
Revêtement extérieur
Bardage en vinyle
Stationnement
Type de stationnement
Garage détaché, Garage
Nombre total d'espaces de stationnement
7

Mesures

Superficie
1500 - 2000 pi2

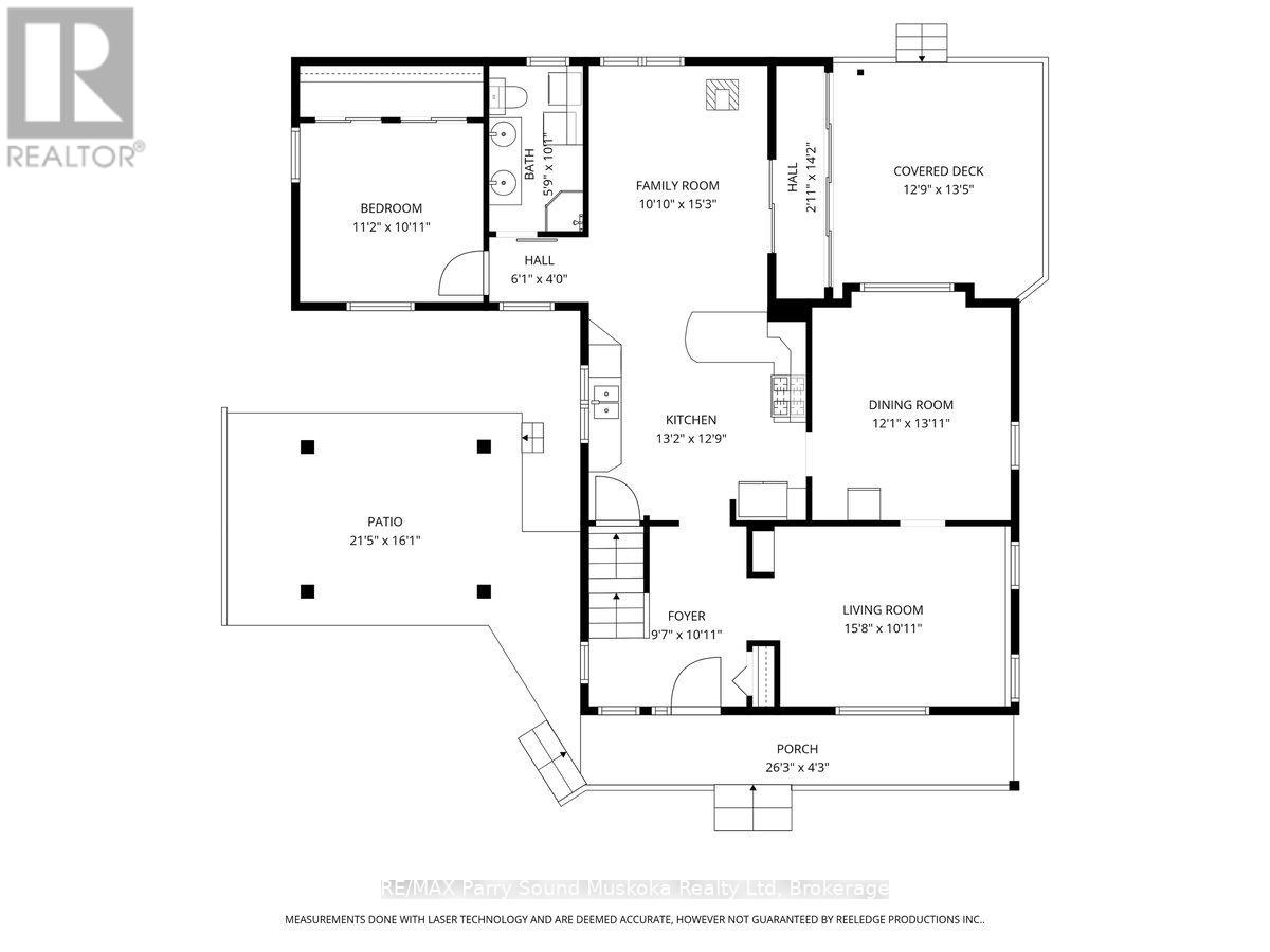
Pièces

MétriqueImpérial
Niveau principal
Vestibule
Salon
Cuisine
Salle à manger
Salle familiale
Chambre à coucher
Salle de bain
Deuxième niveau
Salle de bain
Chambre principale
Chambre à coucher
Chambre à coucher
Niveau inférieur
Autre

Terrain

Caractéristiques du terrain
Clôture
Entièrement clôturé, Cour clôturée
Façade
73 pi
Superficie du terrain
99 pi 9 po
Données fournies par : OnePoint - The Lakelands
Souhaitez-vous visiter cette propriété?
Demander une visite

Inscriptions semblables

DENISE GEORGE