Nous utilisons des témoins et d’autres technologies pour assurer le fonctionnement et la sécurité de nos services en ligne, et pour vous offrir une expérience personnalisée. En continuant à utiliser nos services en ligne, vous acceptez notre Politique de confidentialité et les conditions d’utilisation. Pour obtenir des informations sur la façon de régler vos paramètres de confidentialité, veuillez consulter notre Politique sur les témoins.
Masquer
Accueil ON Centre Wellington Comté de Wellington
39 KAY CRESCENT
Directions Imprimer
39 KAY CRESCENT 889 900 $
Prochaine visite libre
7
févr.
889 900 $
Masquer
Favoris

39 KAY CRESCENT
Centre Wellington (Fergus), Ontario N1M0A4

Numéro MLS® : X12426821
4
Chambres
3
Salles de bain
2000 - 2500
Pieds carrés

Visites libres

7 févr.
14 h - 15 h
Ajouter au calendrier

Résumé de la propriété

Type de propriété
Unifamiliale
Type de bâtiment
Unifamilial
Étages
2
Superficie
2000 - 2500 pi2
Titre
Tenure franche
Superficie du terrain
32 x 119 FT
Impôt foncier annuel
4 934,93 $
Type de stationnement
Garage, En tandem
Sur REALTOR.ca depuis
131 jours

Édifice

Chambres
Au-dessus du niveau du sol
4
Salles de bain
Total
3
Partielle
1
Caractéristiques intérieures
Appareils électroménagers inclus
Télécommande(s) d'ouvre-porte de garage, Adoucisseur d'eau, Stores, Lave-vaisselle, Sécheuse, Ouvre-porte de garage, Micro-ondes, Plaque de cuisson, Cuisinière(s) à gaz, Chauffe-eau, Machine à laver, Réfrigérateur
Couvre-plancher
plancher de bois franc, Céramique, plancher recouvert de tapis
Type de sous-sol
Sous-sol complet (Non aménagé)
Caractéristiques du bâtiment
Caractéristiques
Conservation/ceinture verte, Pompe de vidange
Type de fondation
Béton coulé
Style
Isolée
Commodités qu'offre le bâtiment
Foyer(s)
Chauffage et refroidissement
Système de refroidissement
Climatisation centrale
Foyer
1
Type de chauffage
Air pulsé (Gaz naturel)
Services publics
Égouts
Fosse septique
Eau
Approvisionnement en eau par la municipalité
Caractéristiques extérieures
Revêtement extérieur
Brique, Acier
Stationnement
Type de stationnement
Garage, En tandem
Nombre total d'espaces de stationnement
3

Mesures

Superficie
2000 - 2500 pi2

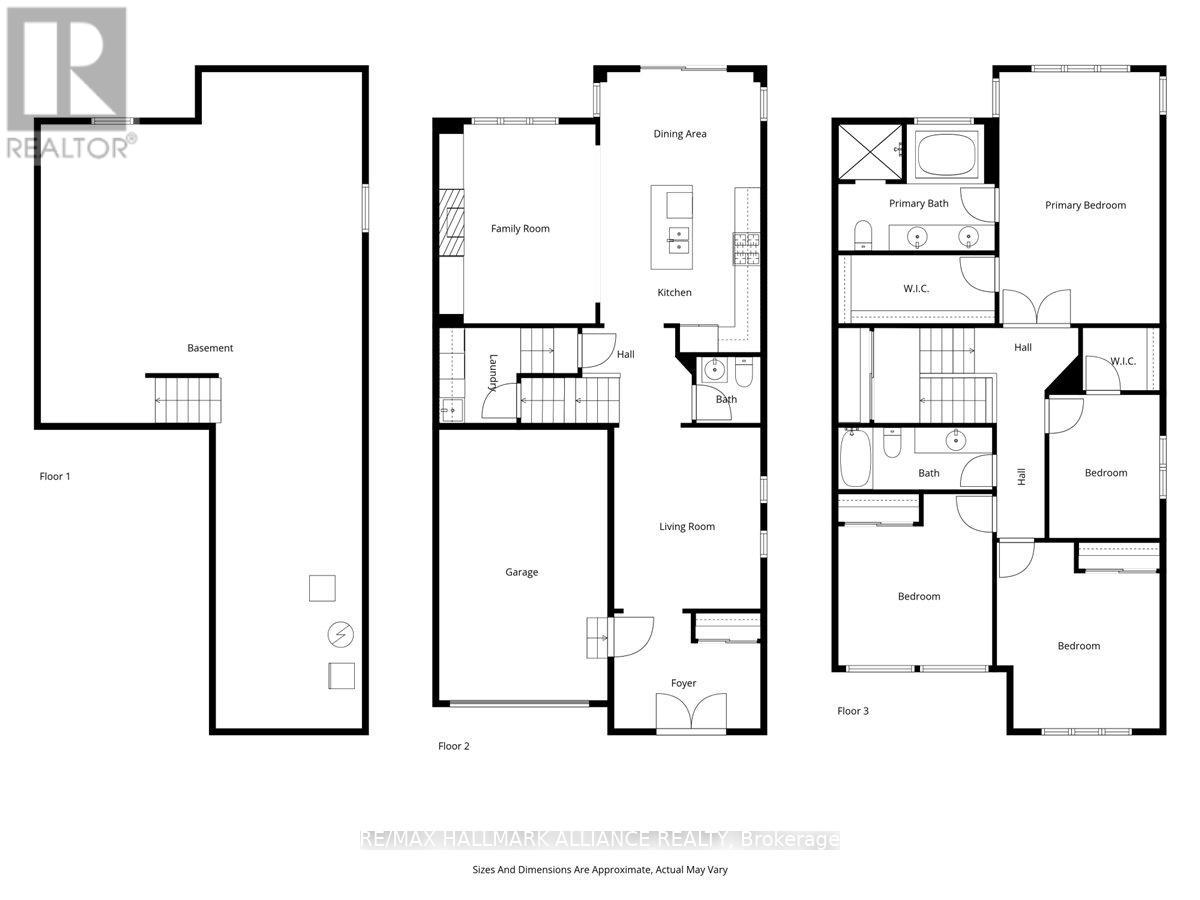
Pièces

MétriqueImpérial
Niveau principal
Salon
Salle familiale
Cuisine
Salle à manger
Buanderie
Deuxième niveau
Chambre principale
Deuxième chambre
Troisième chambre
Quatrième chambre

Terrain

Caractéristiques du terrain
Clôture
Cour clôturée
Façade
32 pi
Superficie du terrain
119 pi
Vue
Vue
Données fournies par : Toronto Regional Real Estate Board
Souhaitez-vous visiter cette propriété?
Demander une visite

Inscriptions semblables

AMANDA MOCO