Nous utilisons des témoins et d’autres technologies pour assurer le fonctionnement et la sécurité de nos services en ligne, et pour vous offrir une expérience personnalisée. En continuant à utiliser nos services en ligne, vous acceptez notre Politique de confidentialité et les conditions d’utilisation. Pour obtenir des informations sur la façon de régler vos paramètres de confidentialité, veuillez consulter notre Politique sur les témoins.
Masquer
Accueil NB Grand Campbellton Comté de Restigouche Campbellton
10 Boucher Street
Directions Imprimer
10 Boucher Street 450 000 $
450 000 $
Masquer
Favoris

10 Boucher Street
Campbellton, Nouveau-Brunswick E3N2P1

Numéro MLS® : NB124576

Description de l’inscription

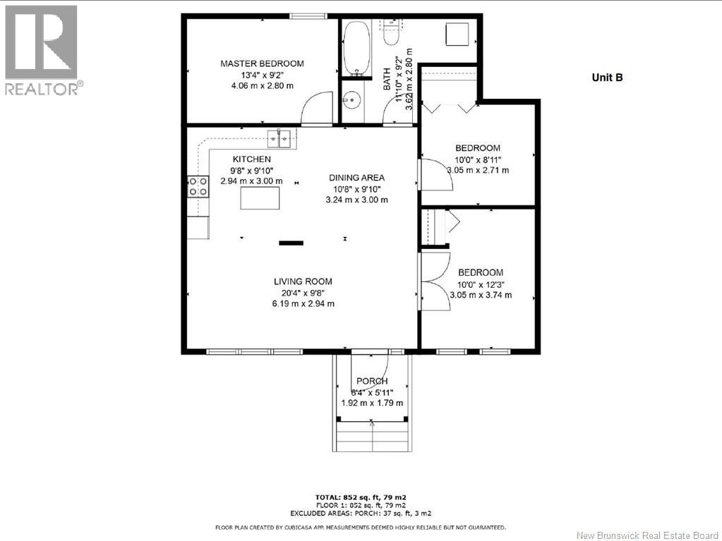
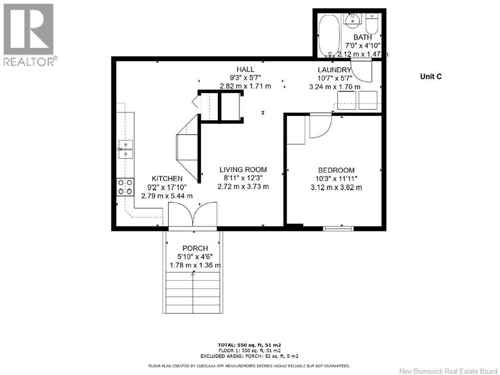
À la recherche de propriétés d'investissement? Bienvenue au 10 rue Boucher, Campbellton. Cet immeuble de quatre logements est situé au coeur de la ville, à distance de marche de toutes les commodités. Il se compose de 1 unité de trois chambres à coucher, de 1 unité de deux chambres à coucher et de 2 unités de une chambre à coucher. Cette propriété est vraiment bien entretenue et possède amplement d'espace de stationnement. Le sous-sol est actuellement vide et pourrait facilement être transformé en deux unités supplémentaires. Toutes les mesures sont approximatives. (28841470)

Résumé de la propriété

Type de propriété
Multifamilial
Type de bâtiment
Quadruplex
Étages
2
Titre
Tenure franche
Superficie du terrain
933 m2
Date de construction
1985
Impôt foncier annuel
5 960,05 $
Sur REALTOR.ca depuis
126 jours

Édifice

Caractéristiques intérieures
Appareils électroménagers inclus
Réfrigérateur, Cuisinière, Machine à laver, Sécheuse
Couvre-plancher
Céramique, plancher en stratifié, Vinyle, plancher en bois
Caractéristiques du bâtiment
Caractéristiques
Balcon/terrasse
Type de fondation
Fondation en béton, Système de coffrage isolant
Location de matérial incluse
Chauffe-eau
Unités totales
4
Chauffage et refroidissement
Type de chauffage
(Électrique)
Services publics
Égouts
Égout municipal
Eau
Approvisionnement en eau par la municipalité
Caractéristiques extérieures
Revêtement extérieur
Vinyle

Mesures

Superficie
2789 pi2
Superficie totale aménagée
2789 pi2

Terrain

Autres informations sur la propriété
Accès
Accès toute l'année, Voie publique
Données fournies par : REALTORS® du Nouveau Brunswick
Souhaitez-vous visiter cette propriété?
Demander une visite

Inscriptions semblables

Yves Castonguay