Nous utilisons des témoins et d’autres technologies pour assurer le fonctionnement et la sécurité de nos services en ligne, et pour vous offrir une expérience personnalisée. En continuant à utiliser nos services en ligne, vous acceptez notre Politique de confidentialité et les conditions d’utilisation. Pour obtenir des informations sur la façon de régler vos paramètres de confidentialité, veuillez consulter notre Politique sur les témoins.
Masquer
Accueil AB Division No. 3 Cardston
902 Fairway Boulevard W
Directions Imprimer
902 Fairway Boulevard W 719 900 $
719 900 $
Masquer
Favoris

902 Fairway Boulevard W
Cardston, Alberta T0K0K0

Numéro MLS® : A2233905
3
Chambres
3
Salles de bain
2793
Pieds carrés

Résumé de la propriété

Type de propriété
Unifamiliale
Type de bâtiment
Unifamilial
Étages
2
Superficie
2793 pi2
Titre
Tenure franche
Superficie du terrain
7200 pi2|4 051 - 7 250 pi2
Date de construction
2025
Impôt foncier annuel
585,30 $
Type de stationnement
Garage attenant (2)
Sur REALTOR.ca depuis
174 jours

Édifice

Chambres
Au-dessus du niveau du sol
3
Salles de bain
Total
3
Partielle
1
Caractéristiques intérieures
Appareils électroménagers inclus
Machine à laver, Réfrigérateur, Lave-vaisselle, Cuisinière, Sécheuse
Couvre-plancher
plancher recouvert de tapis, Planche vinyle
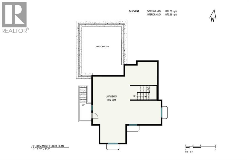
Type de sous-sol
Sous-sol complet (Non aménagé)
Caractéristiques du bâtiment
Caractéristiques
Fenêtres PVC, Aucun voisin à l'arrière
Type de fondation
Béton coulé
Style
Isolée
Matériau de Construction
Charpente en bois
Structures
Terrasse
Chauffage et refroidissement
Système de refroidissement
Climatisation centrale
Type de chauffage
Air pulsé
Caractéristiques du quartier
Caractéristiques de la communauté
Ensemble domiciliaire près d'un terrain de golf
Commodités à proximité
Terrain de golf, Parc, Terrain de jeu, Loisirs à proximité, Écoles
Stationnement
Type de stationnement
Garage attenant (2)
Nombre total d'espaces de stationnement
4

Mesures

Superficie
2793 pi2
Superficie totale aménagée
2793 pi2

Pièces

MétriqueImpérial
Niveau principal
Salle familiale
Bureau
Autre
Cuisine
Salle à manger
Salle de bain - 2 éléments
Garde-manger
Deuxième niveau
Salle familiale
Autre
Salle de bain - 4 éléments
Chambre à coucher
Chambre principale
Salle de bain - 4 éléments
Autre
Buanderie
Chambre à coucher

Terrain

Caractéristiques du terrain
Clôture
Non clôturé
Façade
18.29 m
Superficie du terrain
36.57 m
Données fournies par : Pillar 9™
Souhaitez-vous visiter cette propriété?
Demander une visite

Inscriptions semblables

Jodi Atwood