Nous utilisons des témoins et d’autres technologies pour assurer le fonctionnement et la sécurité de nos services en ligne, et pour vous offrir une expérience personnalisée. En continuant à utiliser nos services en ligne, vous acceptez notre Politique de confidentialité et les conditions d’utilisation. Pour obtenir des informations sur la façon de régler vos paramètres de confidentialité, veuillez consulter notre Politique sur les témoins.
Masquer
Accueil NS Comté de Pictou Pictou
Lot 25-7 Michaela Street
Directions Imprimer
Lot 25-7 Michaela Street 424 900 $
424 900 $
Masquer
Favoris

Lot 25-7 Michaela Street
Pictou, Nouvelle-Écosse B0K1H0

Numéro MLS® : 202506048
2
Chambres
2
Salles de bain
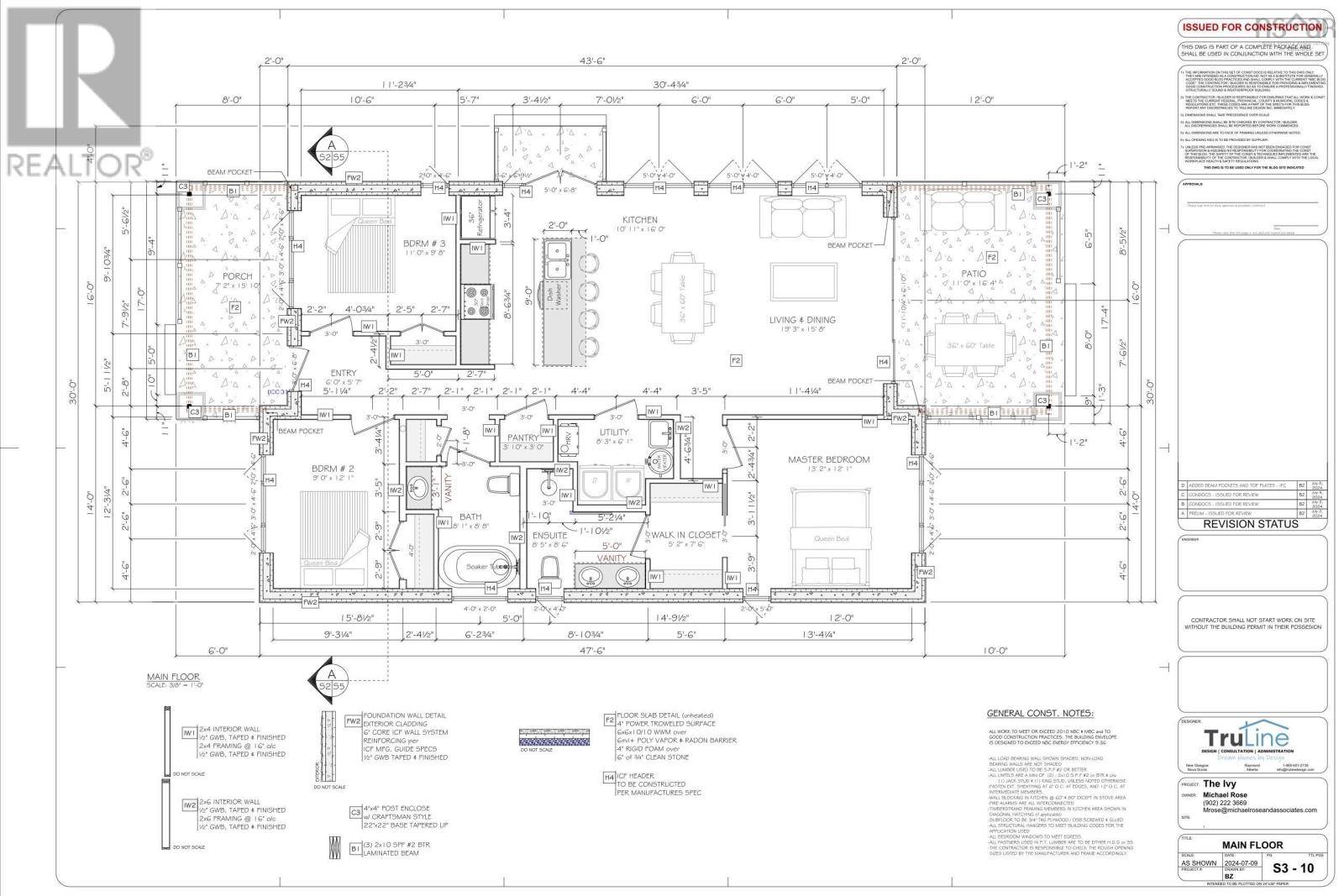
1320
Pieds carrés

Résumé de la propriété

Type de propriété
Unifamiliale
Type de bâtiment
Unifamilial
Étages
1
Superficie
1320 pi2
Titre
Tenure franche
Superficie du terrain
0.129 a
Type de stationnement
Béton
Sur REALTOR.ca depuis
272 jours

Édifice

Chambres
Au-dessus du niveau du sol
2
Salles de bain
Total
2
Partielle
1
Caractéristiques intérieures
Couvre-plancher
plancher en stratifié
Type de sous-sol
Pas de sous-sol
Caractéristiques du bâtiment
Type de fondation
Béton coulé
Style
Isolée
Chauffage et refroidissement
Système de refroidissement
Thermopompe
Services publics
Égouts
Égout municipal
Eau
Approvisionnement en eau par la municipalité
Caractéristiques extérieures
Revêtement extérieur
Vinyle
Caractéristiques du quartier
Caractéristiques de la communauté
Autobus scolaire
Commodités à proximité
Terrain de jeu, Transport en commun, Centres commerciaux, Lieu de culte, Plage
Stationnement
Type de stationnement
Béton
Fonctions d’accessibilité
Entrée et accès
Cadres de porte d'entrée : min. 32 po, Entrée : moins de 3 marches, Seuil de passage : moins de ½ pouce
Cuisine et électroménagers
Diamètre de rotation dans la cuisine : min. 5 pi
Commodités de la salle de bains
Diamètre de rotation dans la salle de bains : 5 pi
Déplacement à l'intérieur
Cadres de porte : min. 32 po

Mesures

Superficie
1320 pi2
Source : Autre
Superficie totale aménagée
1320 pi2

Pièces

MétriqueImpérial
Niveau principal
Salon
Autre
Cuisine
Chambre à coucher
Chambre à coucher
Chambre à coucher
Bain (nbre de pièces 1-6)
Ensuite (nbre de pièces 2-6)
Autre
Local de services

Terrain

Caractéristiques du terrain
Aménagement paysager
Terrain paysager
Vue
Vue sur l'océan
Données fournies par : Nova Scotia Association of REALTORS®
Souhaitez-vous visiter cette propriété?
Demander une visite

Inscriptions semblables

Cait Banks