Nous utilisons des témoins et d’autres technologies pour assurer le fonctionnement et la sécurité de nos services en ligne, et pour vous offrir une expérience personnalisée. En continuant à utiliser nos services en ligne, vous acceptez notre Politique de confidentialité et les conditions d’utilisation. Pour obtenir des informations sur la façon de régler vos paramètres de confidentialité, veuillez consulter notre Politique sur les témoins.
Masquer
Accueil AB Division No. 1 Bow Island
171 Parkview Crescent W
Directions Imprimer
171 Parkview Crescent W 419 900 $
419 900 $
Masquer
Favoris

171 Parkview Crescent W
Bow Island, Alberta T0K0G0

Numéro MLS® : A2194254
2
Chambres
2
Salles de bain
1070
Pieds carrés

Résumé de la propriété

Type de propriété
Unifamiliale
Type de bâtiment
Maison en rangée
Étages
1
Superficie
1070 pi2
Titre
Tenure franche
Superficie du terrain
2475 pi2|0-4 050 pi2
Date de construction
2025
Impôt foncier annuel
0 $
Type de stationnement
Autre, Garage attenant (1)
Sur REALTOR.ca depuis
356 jours

Édifice

Chambres
Au-dessus du niveau du sol
2
Salles de bain
Total
2
Partielle
0
Caractéristiques intérieures
Appareils électroménagers inclus
Aucun
Couvre-plancher
Vinyle
Type de sous-sol
Sous-sol complet (Non aménagé)
Caractéristiques du bâtiment
Type de fondation
Béton coulé, Voir les notes
Style
En rangée
Style d'architecture
Bungalow
Matériau de Construction
Charpente en bois, Coffrage à béton isolé
Chauffage et refroidissement
Système de refroidissement
Climatisation centrale
Foyer
1
Type de chauffage
Air pulsé
Caractéristiques du quartier
Commodités à proximité
Parc, Terrain de jeu, Écoles, Centres commerciaux
Stationnement
Type de stationnement
Autre, Garage attenant (1)
Nombre total d'espaces de stationnement
2

Mesures

Superficie
1070 pi2
Superficie totale aménagée
1070 pi2

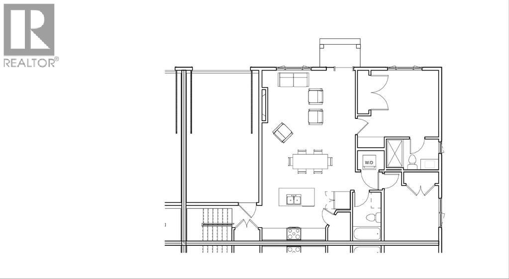
Pièces

MétriqueImpérial
Niveau principal
Autre
Salon
Salle de bain - 4 éléments
Chambre à coucher
Chambre principale
Salle de bain - 3 éléments

Terrain

Caractéristiques du terrain
Clôture
Non clôturé
Façade
13.72 m
Superficie du terrain
12.19 m
Données fournies par : Pillar 9™
Souhaitez-vous visiter cette propriété?
Demander une visite

Inscriptions semblables

DENISE FODE